PW600

CAD Downloads

PW600 Downloads

The Thermosash PW600 is a two sided structurally glazed curtainwall with mechanically engaged expressed horizontal transom elements, providing an accent on the horizontal aspect of the building façade.

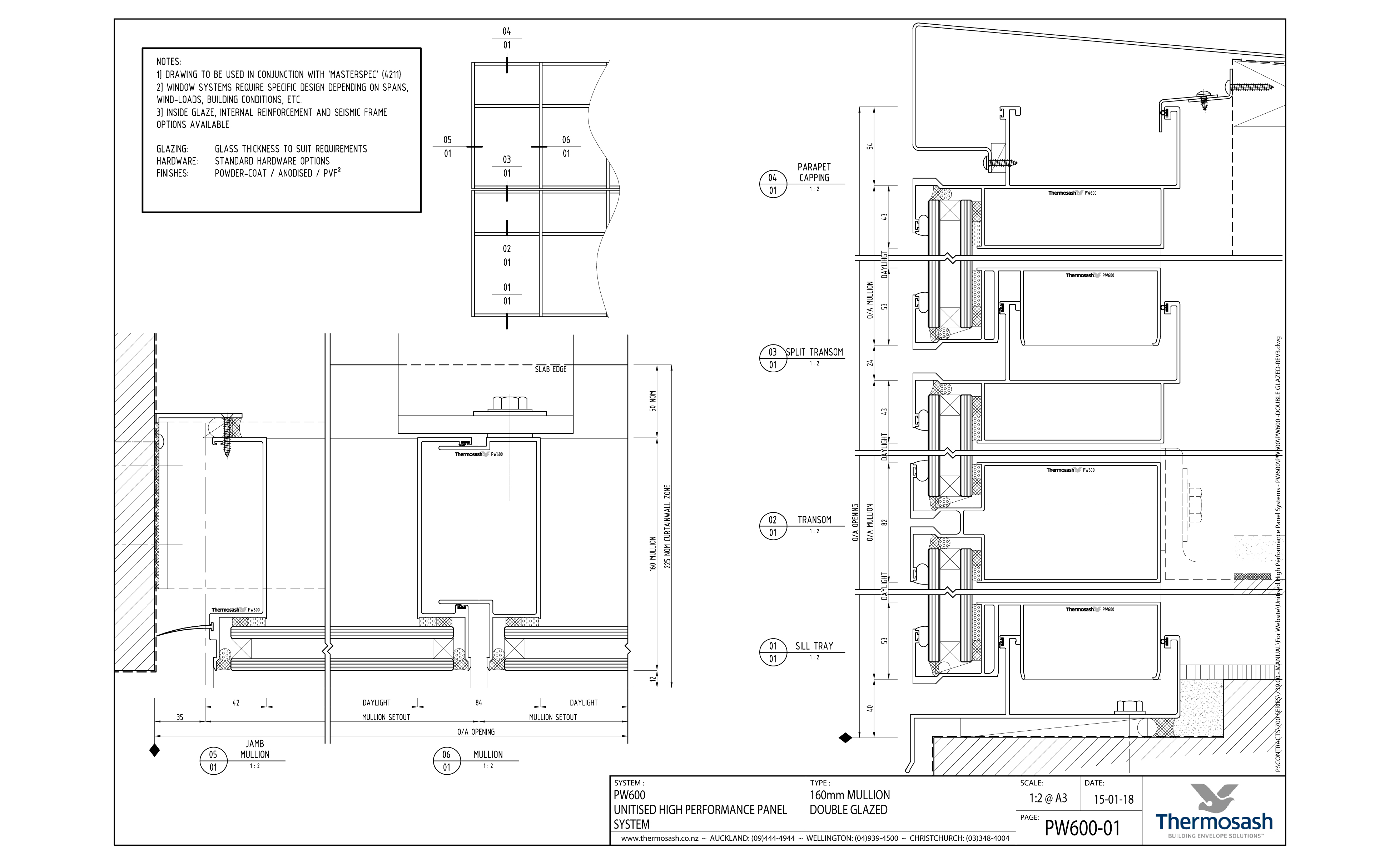
PW600 - 160mm Mullion Double Glazed

Download files

Thermosash Curtain Wall Fixing Bracket

Download files

Specification

We recommend using Masterspec 4211TS Curtainwall when specifying this suite.

Finishes

  • Polyester powder coat - both standard and special colours available.
  • Anodised - all anodised colours available - commercial grade 20 micron finish recommended.
  • PVF2 Fluorocarbon finishes - Available on request.