
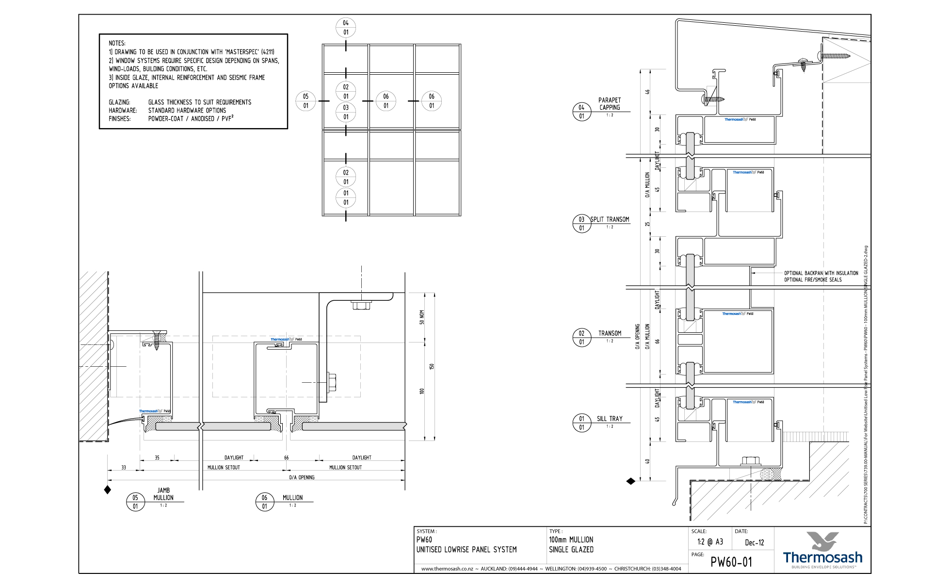
The Thermosash PW60 is a two sided structurally glazed curtainwall with mechanically engaged expressed horizontal transom elements, providing an accent on the horizontal aspect of the building facade.
The Thermosash PW60 is a two sided structurally glazed curtainwall with mechanically engaged expressed horizontal transom elements, providing an accent on the horizontal aspect of the building facade.