Solar Shading Integrated into Curtainwall

CAD Downloads

Solar Shading Integrated into Curtainwall

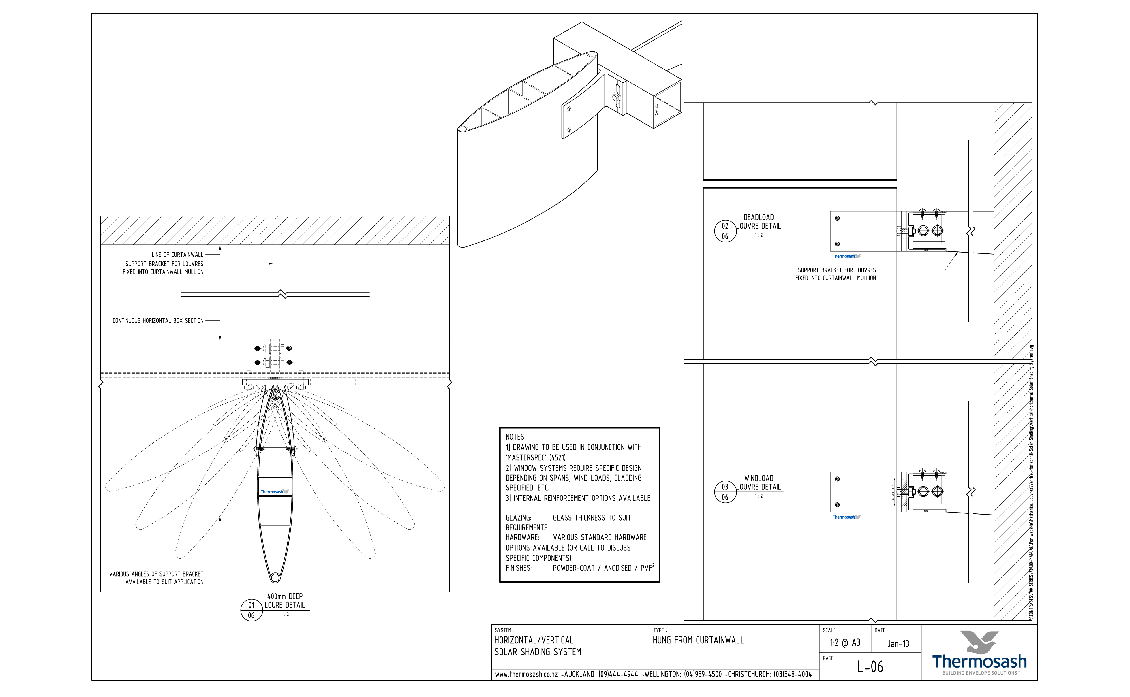
  • Thermosash Horizontal / Vertical solar shading system hung from curtainwall.
  • Thermosash Horizontal solar shading cantilevered from curtainwall.

Vertical / Horizontal Hung from Curtainwall

Download files

Horizontal Cantilevered from Curtainwall

Download files

Specification

Finishes

  • Polyester powdercoat - both standard and special colours available
  • Anodised - all anodised colours available - commercial grade 20 Micron finish recommended
  • PVF2 Fluorocarbon finishes - available on request