Channel Glazing System

CAD Downloads

Channel Glazing System Downloads

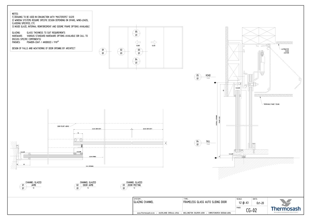
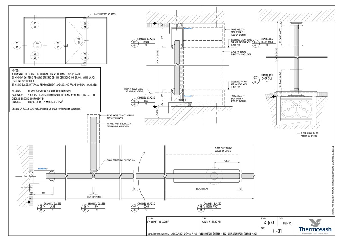
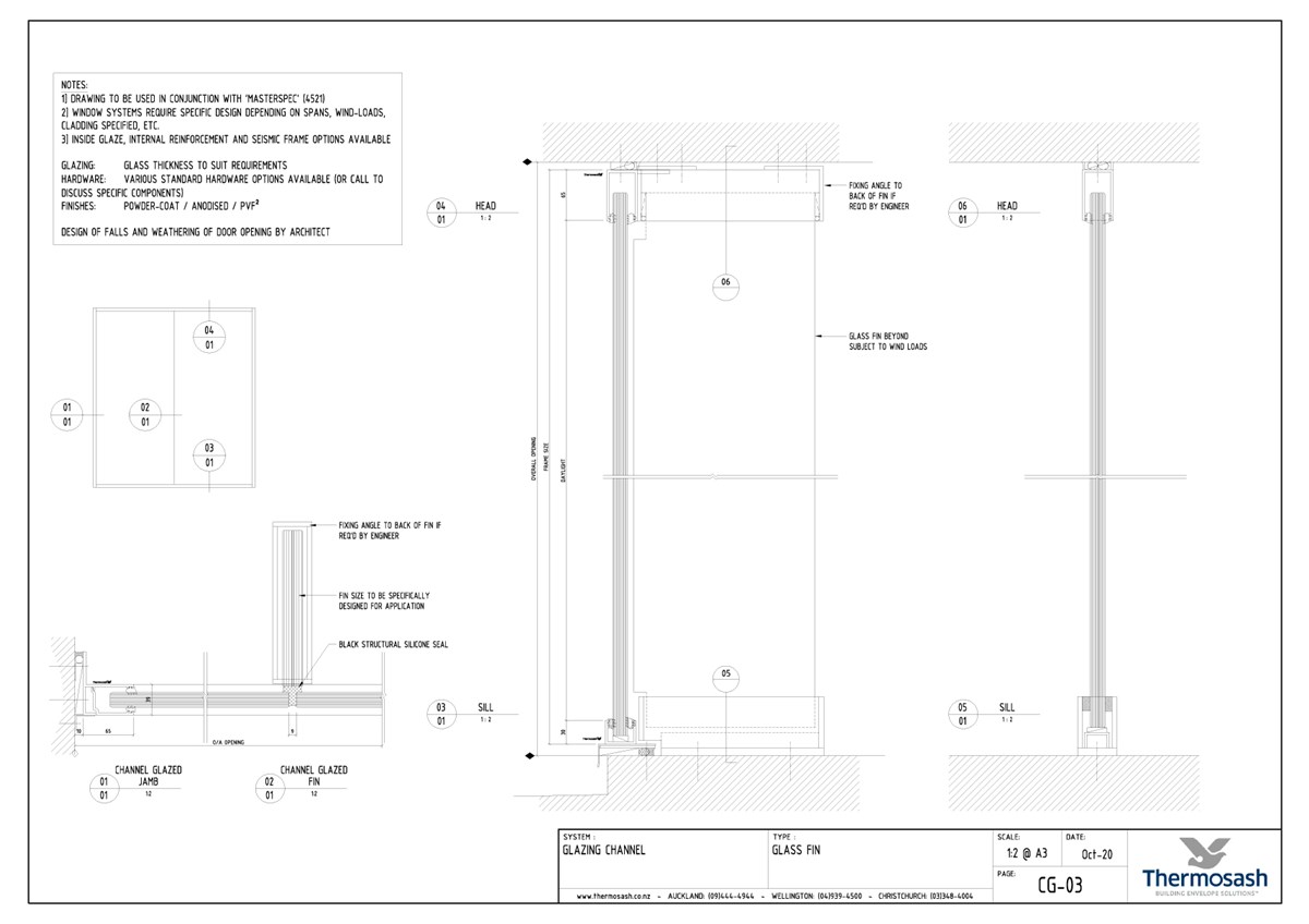
Channel glazing is a method of window glazing which uses a 'U' shaped aluminium channel with metal or rubber gaskets to hold the glass in place. Generally, where large glass panes are employed, they are integrated with an engineered glass fin or a tension truss system or similar. These systems are face sealed in the field and rely on sealant for weathering performance.

Channel Glazing System - Single Glazed

Download files

Channel Glazing System - Frameless Glass Auto Sliding Door

Download files

Channel Glazing System - Glass Fin

Download Files

Specification

We recommend using Masterspec 4521TS Commercial Windows when specifying this suite.

Finishes