Cantilievered Glass Balustrades

Product Description

Thermosash can undertake your project's custom engineered barrier design solution - all engineered to allow for specified loading's, including extreme loading's that can be imposed in crowded or public areas.

We can assist in the total supply to install process, engineering your concepts, all to the highest ratings required and independent certification where requested, including consideration towards system redundancy in case of spontaneous glass failure.

Over the years the standards and building codes have changed to increase barrier loading requirements for glass balustrades and barrier supporting structures used in and around buildings. The revised standards address barriers and glazing safe guarding a fall of 1m or more.

This is fully explained in the following document from the department of Building and Housing 'Guidance on Barrier Design' and can be downloaded from the following link Guidance on Barrier Design - March 2012 also refer GANZ (Glass Association of New Zealand).

With our in-house glass and structural engineering capability we can manufacture practically any design including unique site specific fixing methods in glass (including curved), aluminium, stainless steel or industrial paint coated steel where necessary, providing a durable maintenance free barrier solution.

The Key to barrier design is to first understand the occupancy type for the barrier location and the following brief from AS/NZ 1170.1:2002 provides a guide. Once occupancy is defined the appropriate loading can be applied to calculate the appropriate glass and frame system to resist the proposed loads;

Excerpt from code:

  • A   Domestic and residential activities All areas within or serving exclusively one dwelling including stairs landings etc but excluding external balconies and edges or roofs see (C3)
  • C1/C2   Areas with tables or fixed seating - Areas with fixed seating adjacent to a balustrade, restaurants, bars etc.
  • C3   Areas without obstacles for moving people and not susceptible to overcrowding – Stairs, landings, external balconies, edges of roofs etc.
  • C5   Areas susceptible to overcrowding – Theatres, cinemas, grandstands, discotheques, bars, auditoria, shopping malls (see also D), assembly areas, studios etc.
  • D   Retail areas – All retail areas including public areas of banks / building societies, (see C5 for areas where overcrowding may occur).


Woods Glass and Thermosash technical support team can help to ensure the barrier system is engineered according to specific design requirements and manufactured and installed as building compliant.

Section Sizes

Due to the fully customized manufacturing nature of this product please call us to discuss your project brief.

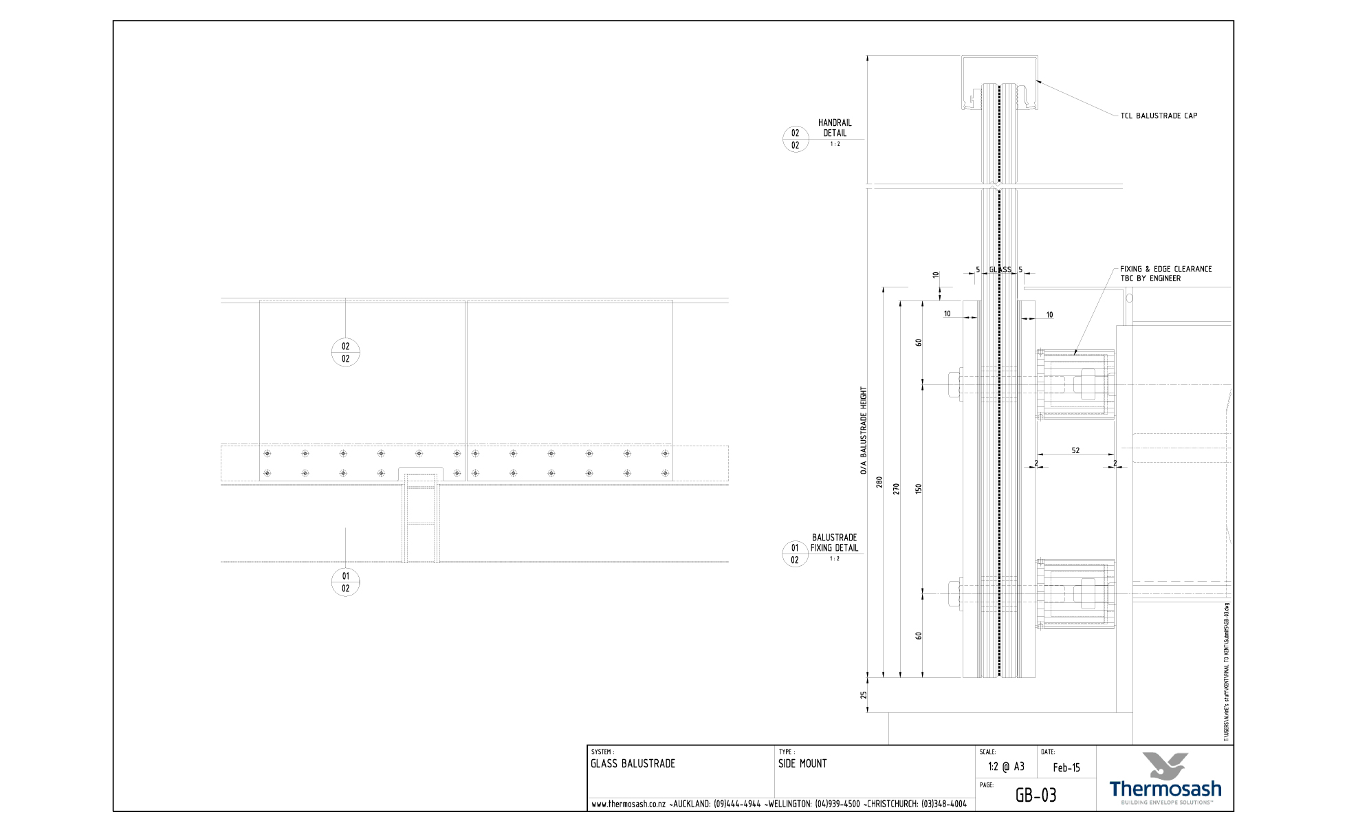
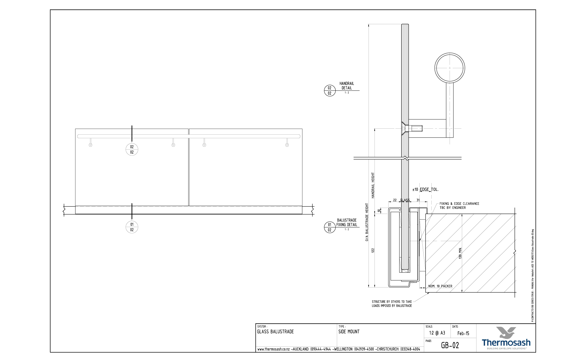
Thermosash has their own Proprietary Channel System refer to the downloads for the DWGs

Performance / Testing

  • AS/NZS1170 (Structural Design Actions)
  • NZS4223 (Glazing in Buildings)

We can also undertake specific element analysis on bespoke brackets etc to support compliance with the above codes - please ask us about this service.

Maximum Spanning Ability

As we specifically engineer all projects - we can assist in maximizing spans to suit your project or find an economical balance between structure and glass strength.

Warranty

The standard warranty is 5 years from the date of practical completion for these products. This covers workmanship and weather tightness, providing the subcontract includes fabrication, installation and glazing of all components.

Read more Read less

Key Features

  • Proprietary cantilevered channel balustrade systems available.
  • Customized barrier systems.
  • Specifically engineered to suit your projects needs.
  • Full engineered system - including glass, fixings, primary and secondary systems.

Specification

We recommend using Masterspec 4521TS Thermosash Commercial Windows & Doors when specifying.

 

 

CAD Downloads

Glass Balustrade Channel Mount

Download files

Glass Balustrade Side Mount

Download files

Glass Balustrade Side Channel Mount

Download files

Finishes

With the many products that we can engineer and manufacture surface finishing will be specific to your projects needs.

Stainless Steel - For all exterior applications we use only 316 stainless steel for all fixings, handrails, bracketry and secondary structure.

Steel - Where steel is proposed we recommend an industrial paint system is specified to provide certainty on durability.

Aluminium:

  • Polyester powdercoat - Both standard and special colours available.
  • Anodised - All anodised colours available - commercial grade 20 micron finish recommended.
  • PVF2 Fluorocarbon finishes - Available on request.

Relevant Projects

The Cloud

The Cloud

Auckland

Jasmax

Fletcher Construction

2011

Auckland Museum Events Centre

Auckland Museum Events Centre

Auckland

Peddle Thorp Architects

Hawkins Construction

2006

Telstra Clear Building - Smales Farm

Telstra Clear Building - Smales Farm

Auckland

Warren & Mahoney

Arrow International

2001

Napier Street GHD

Napier Street GHD

Auckland

Jensen Chambers Young

Mansons TCLM

2012

Westgate Library

Westgate Library

Auckland

Warren & Mahoney

Fletcher Construction

2018

132 Halsey Street

132 Halsey Street

Auckland

Athfield Architects Ltd

Haydn & Rollett Construction Ltd

2019