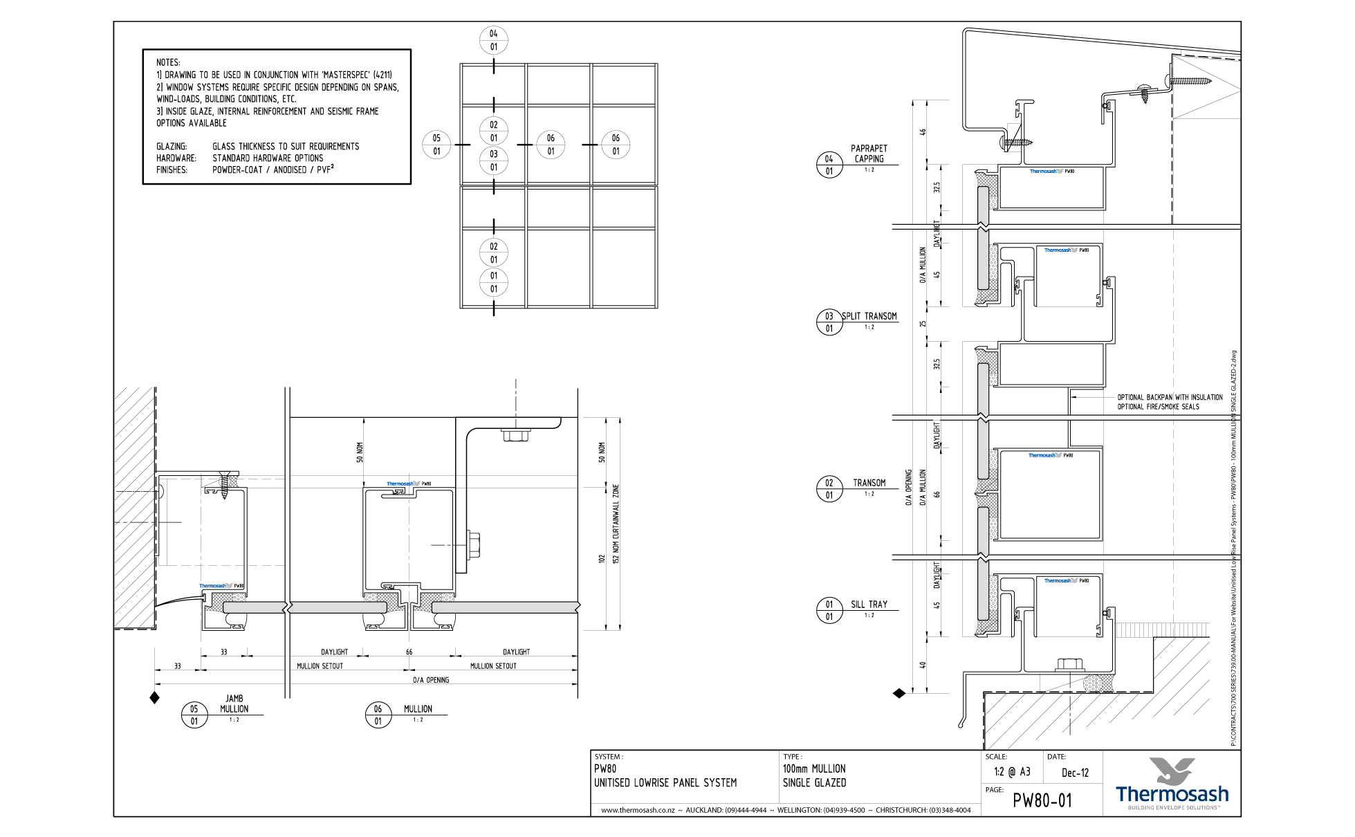
PW80

Product Description

Thermosash PW80 : is a two sided structurally glazed curtainwall suite suitable for low or high rise applications where small spans or where smaller panes of glass are envisioned.

The PW suite has been extensively used and proven in New Zealand and our export markets since 1994. The advantage of this system is that it offers a potentially smooth surface up the length of the glazed facade between the vertical mullions. The PW80 is similar in appearance to our high performance PW800 suite.

Section Sizes

  • 75/100mm Mullions
  • 75/100mm Transoms

Maximum spanning ability

The spanning ability will vary depending on the structural system and environmental loads (e.g. wind).  Thermosash specifically engineers the best suite options to meet project requirements.

PW80 is best used for:

  • Lower floor to floor heights - greater heights are achievable with our PW800 suite
  • Sites with low wind loads
  • Smaller module sizes
  • Areas where there is low building movement

We recommend discussing your project with us early so that we can advise on the best suite solutions for your needs - please contact us.

Pressure equalised design

The weathering design of these curtainwall suites follows recognised international curtainwall design principles - rainscreen pressure equalisation and system drainage - which requires primary and secondary weathering. 

All internal cavities of the system are designed to be pressure equalised (i.e. no pressure differential between the outside face and any internal cavity). This feature allows the water which penetrates the rainscreen to drain and maintain ventilation. The rear air seal is critical to the system's weathering performance as air infiltration acts as the medium which transports water through to the building's interior, i.e. it is the prime cause of any leakage.

Non-vision rainscreen areas act as a primary water-stop, the second airseal and cavity acts as a backup to collect and drain away any water that manages to penetrate the primary rainscreen barrier, with an integral structural backpan.

Integrated Elements

Almost an unlimited type of materials can be integrated into a unitised panel, including different glass types, metals, brackets to receive externally mounted fins, louvres, venetians or building signage for example. The PW100 can accommodate opening sashes suitable for high rise installations.

Low-Carbon Aluminium

Thermosash partners with a local NZ-owned extruder achieving a lower carbon footprint than the global average - offering reduced upfront carbon emissions. (find out more about our Sustainable Aluminium).

Thermosash manufacture all of our own façade components in New Zealand, and primarily source materials were available from the New Zealand market to reduce transport distances and emissions from freight. We recycle 100% of all our metal waste.

Performance / Testing

Thermosash owns and operates the largest façade testing facility in New Zealand where we test our systems and custom designed suites to ensure compliance with the below codes or project specific requirements:

  • AS/NZS1170 (Structural Design Actions)
  • NZS4223 (Glazing in Buildings)
  • NZS/AS4284:2008 (Water / Air Pressure/ Air Leakage - Meets and exceeds minimum requirements)

All the Thermosash suites are independently laboratory tested to IANZ (International Accreditation New Zealand). Test certificates are available on request.

Installation

Our systems are prefabricated and glazed in a factory environment, stored if necessary, and transported for just-in-time site delivery. We have highly skilled installation teams who work safely and effectively to close in buildings rapidly.

Warranty

The standard warranty is 10 years from the date of practical completion for these products. This covers workmanship and weather tightness, providing the subcontract includes fabrication, installation and glazing of all components, and the maintenance schedule is adhered to.

Maintenance

Maintaining glass, metals and stone are all particular to the environment that they are placed in, e.g. marine, environmental pollution, exposure to natural washing, etc.

It is recommended by almost all material suppliers that building washing should occur every 3-6 months to prevent staining to glass and environmental pollutants from corroding metals and to maintain the material warranties.

A full maintenance manual is provided on completion of a project for all the elements integrated within a project. Compliance to a maintenance schedule is essential to maintaining the quality of the installed product over time. Using Thermosash-approved facade maintenance contractor/personnel ensures the highest standards are met.

Read more Read less

Key Features

This engineered façade product is designed to accommodate:

  • building movements - both vertical and horizontal (seismic)
  • Allows for differential rates of thermal expansion and contraction
  • Connection details to accommodate construction tolerances
  • Structural member strengths comply with Code or project specification
  • Glass design and it's integration with the glazing system to ensure glass warranties are complied with

Brochures

Thermosash Unitised Facades - Total Clad Solutions

September 2025

Specification

We recommend using Masterspec 4211TS Curtainwall when specifying this suite.

CAD Downloads

PW80 - 100mm Mullion Single Glazed

Download files

Thermosash Curtain Wall Fixing Bracket

Download files

Finishes

  • Polyester powdercoat - both standard and special colours available
  • Anodised - all anodised colours available - commercial grade 20 Micron finish recommended
  • PVF2 Fluorocarbon finishes - available on request

Relevant Projects

Nelson Airport

Nelson Airport

Nelson

Studio Pacific Architecture

Naylor Love Construction

2019