Sierra Apartment Suite - Sliders

CAD Downloads

Sierra Apartment Suite - Slider Downloads

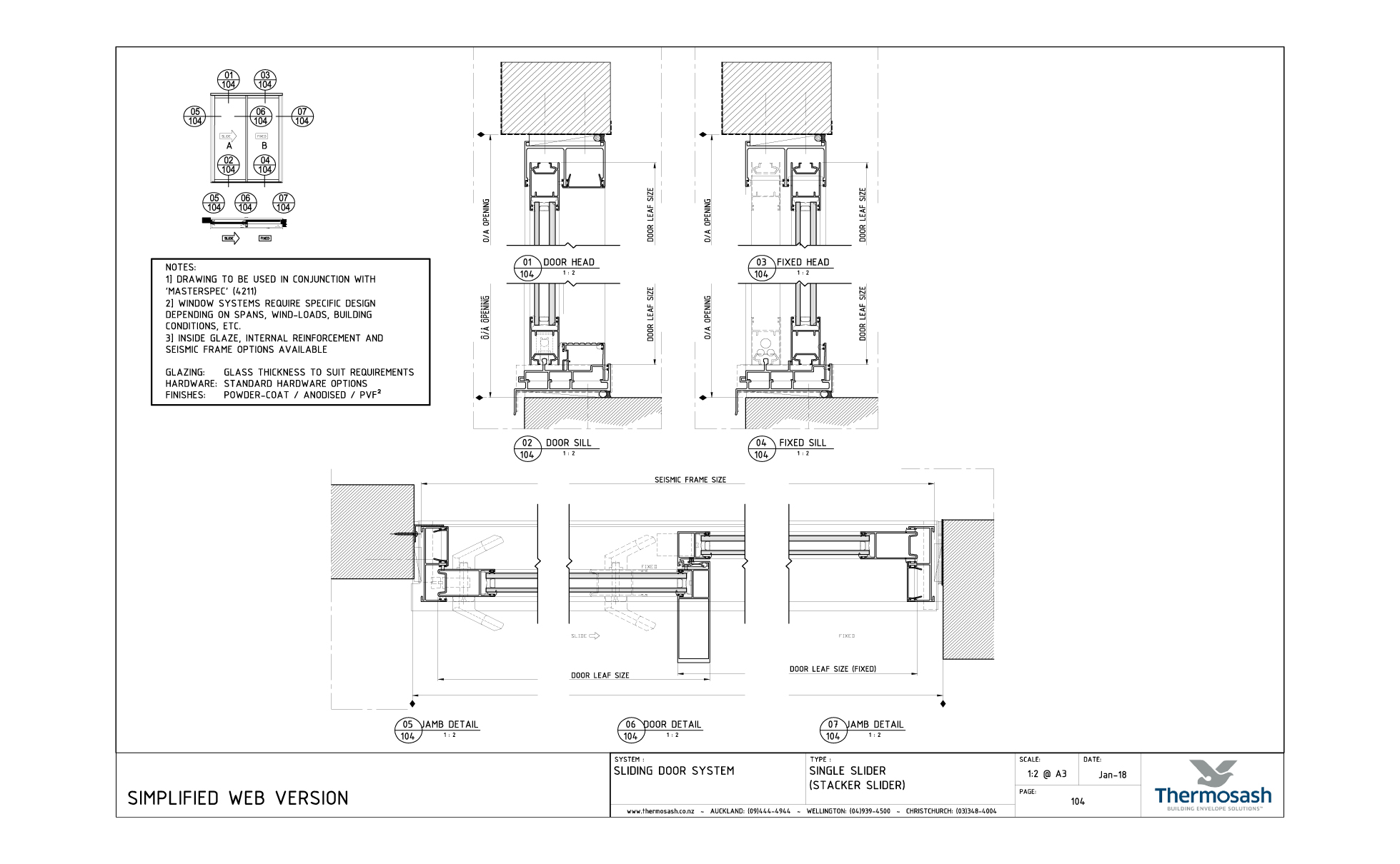
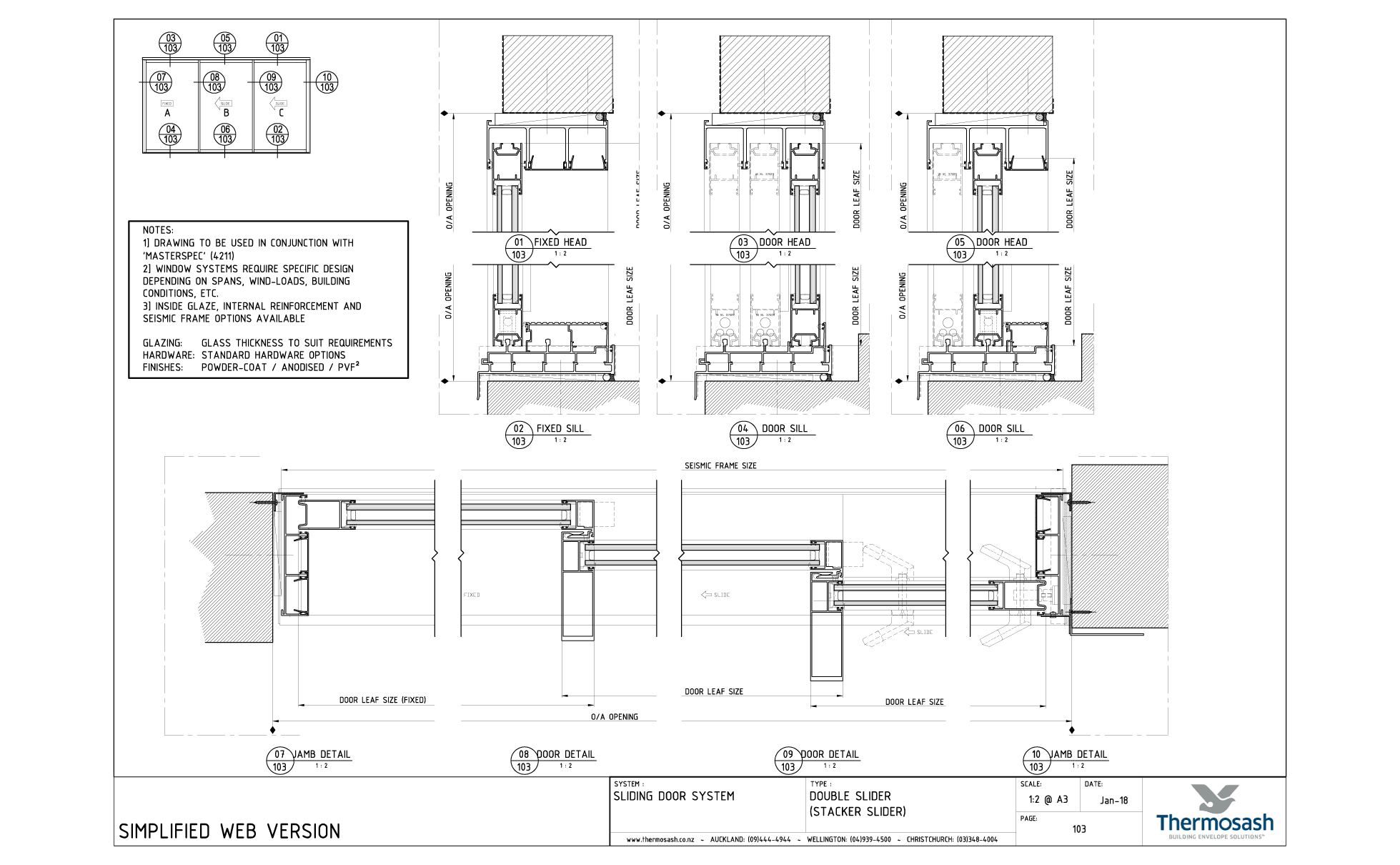
The hardware systems that Thermosash allows for offers easy sliding with high loading / trafficability over the sliding tracks.

Sierra Apartment Suite - Single Slider - 2 Fixed Light

Download files

Sierra Apartment Suite - Single Stacker Slider

Download files

Sierra Apartment Suite - Double Stacker Slider

Download files

Sierra Apartment Suite - Bi-Parting Slider

Download files

Specification

We recommend using Masterspec 4521TS Commercial Windows when specifying this suite.

 

 

Finishes

  • Polyester powder coat - both standard and special colours available.
  • Anodised - all anodised colours available - commercial grade 20 micron finish recommended.
  • PVF2 Fluorocarbon finishes - Available on request.