
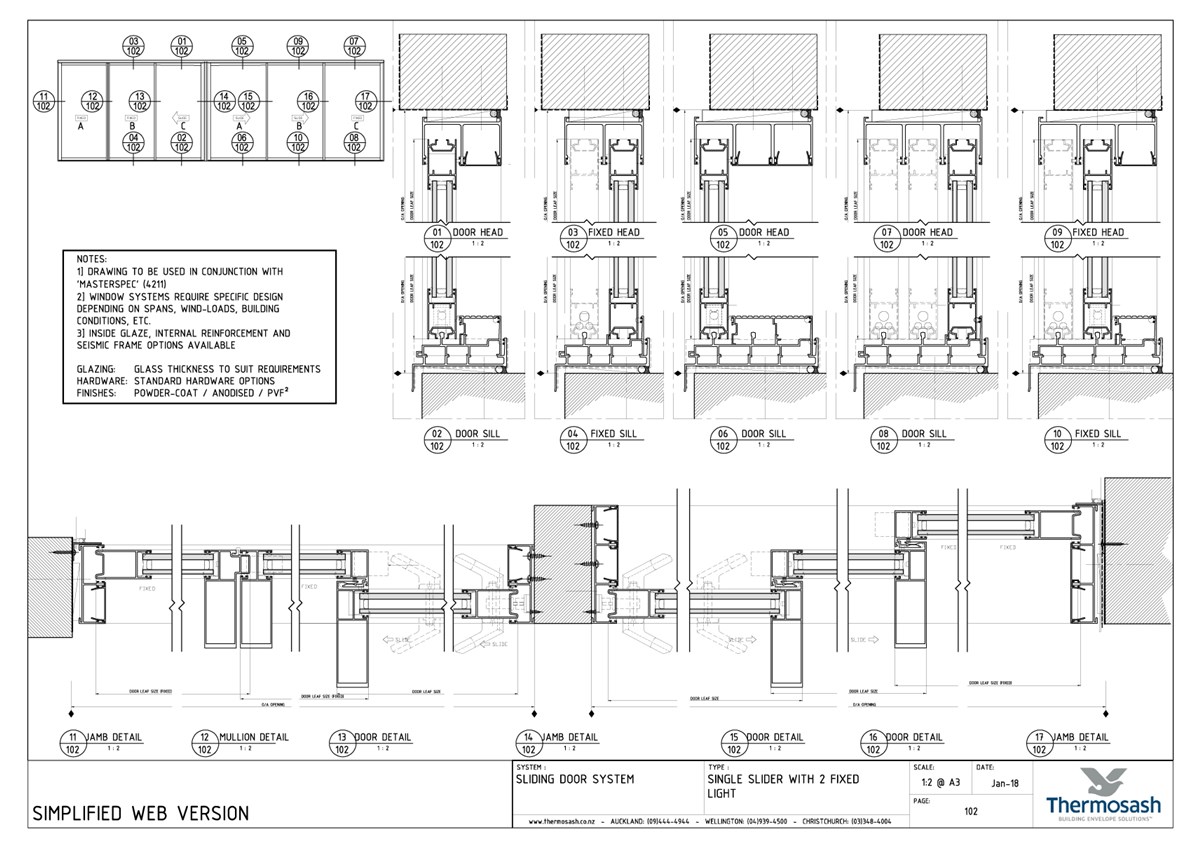
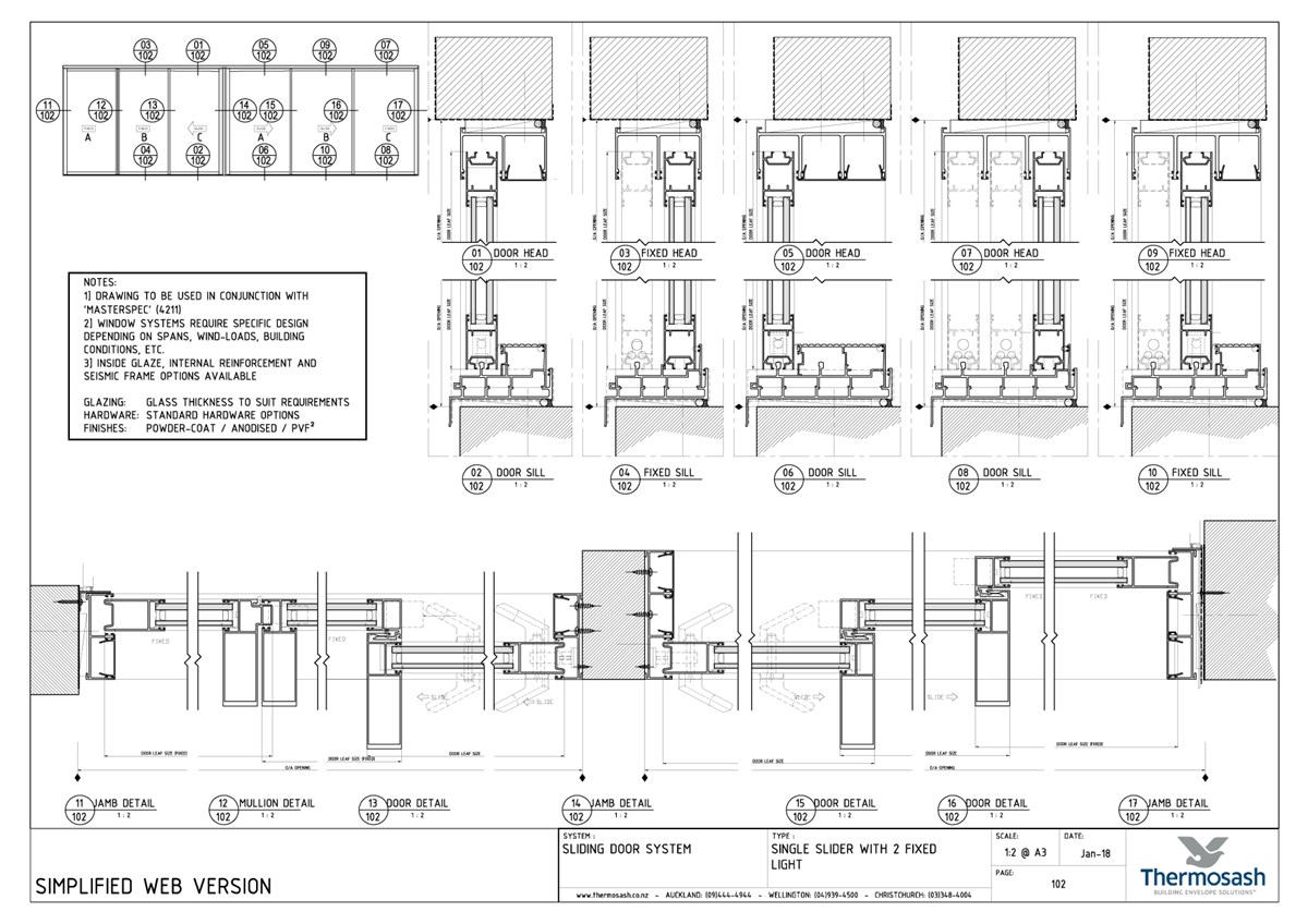
The Sierra Suite was created by Thermosash to meet the demanding needs for a high performing window and door suite to suit from low to high rise apartment buildings. The Research and Development for this suite was inspired from the long-standing outstanding performance of our Delta suite. This re-engineered suite is specifically designed to meet New Zealand’s very high wind pressure code requirements, seismic resilience, high performing acoustic and of equal importance, modern contemporary looks required in high end residential, apartment and hotel applications.
Low-Carbon Aluminium doors and windows
Thermosash partners with a local NZ-owned extruder achieving a lower carbon footprint than the global average - offering reduced upfront carbon emissions. (find out more about our Sustainable Aluminium).
Thermosash manufacture all of our own façade components in New Zealand, and primarily source materials were available from the New Zealand market to reduce transport distances and emissions from freight. We recycle 100% of all our metal waste.