
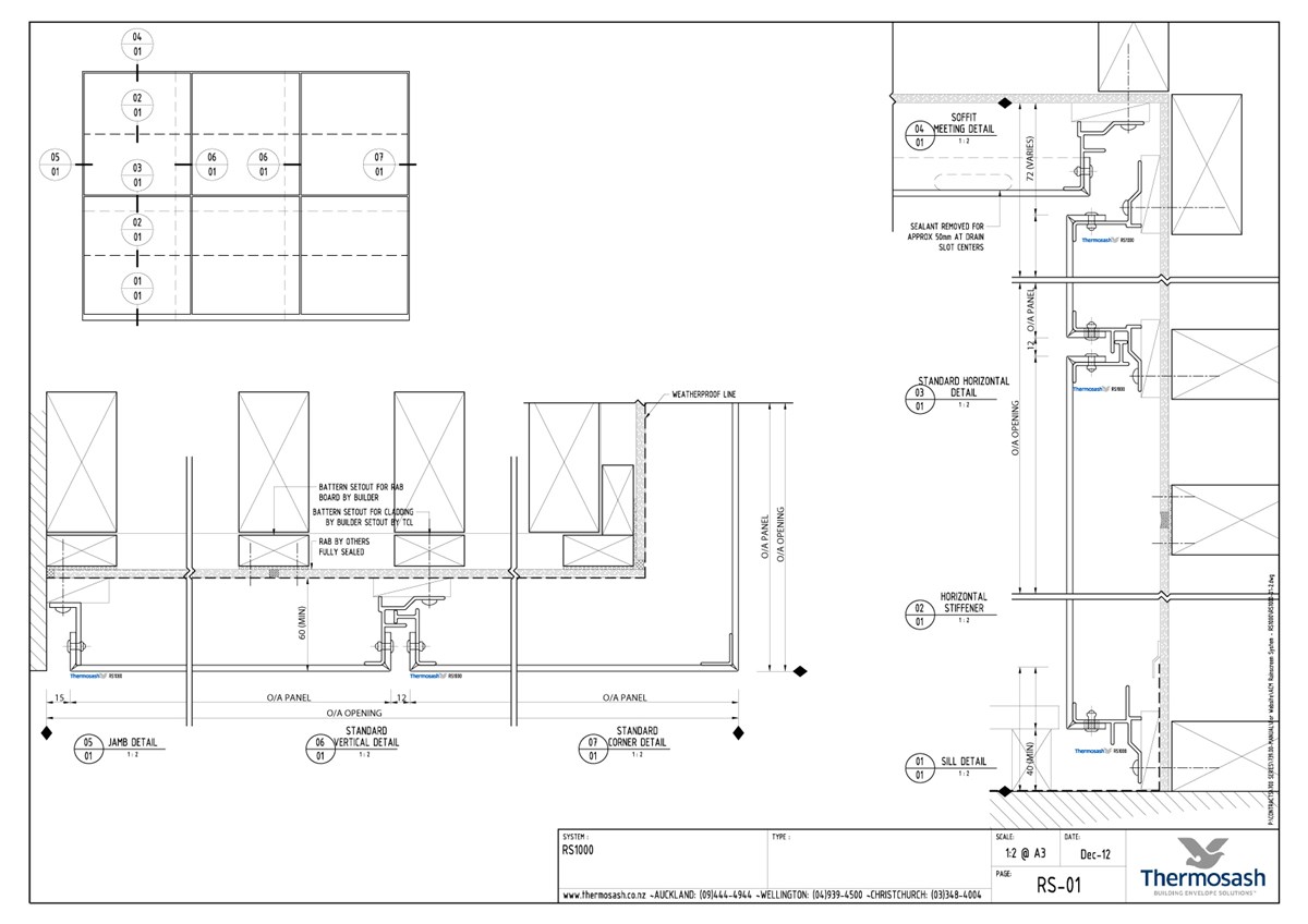
RS1000 Suite - The Thermosash Pressure Equalized Open Joint Cladding - is an engineered cavity rainscreen cladding system, incorporating a unique cavity creating bracketing system. The suite most commonly utilises ACP (Aluminium Composite Panel) as the rainscreen material, but equally also can incorporate almost any other solid metal or ACP type material, such as a cassette cartridge in zinc, stainless steel, terracotta or powder coated aluminum etc.
Rigid Air Barrier
The RS1000 suite requires a formed air barrier wall (Rigid Air Barrier - RAB) located behind with a suitably considered primary structure (concrete panel, timber or steel framing) to receive the cladding rail system. The system joints are Pressure Equalized Open Joint providing the opportunity to overclad buildings and provide a modern sophisticated appearance for a relatively low cost, where an existing durable wall already exists. A typical installation uses a rail system that allows the off-site prefabricated panels to 'hook-on' and often requires external access such as scaffolding. It is best suited to lowrise applications due to the limitations of RABs in multi-storey applications.
Lower Hutt - Wellington
Architecture + Limited
Naylor Love Wellington
2018