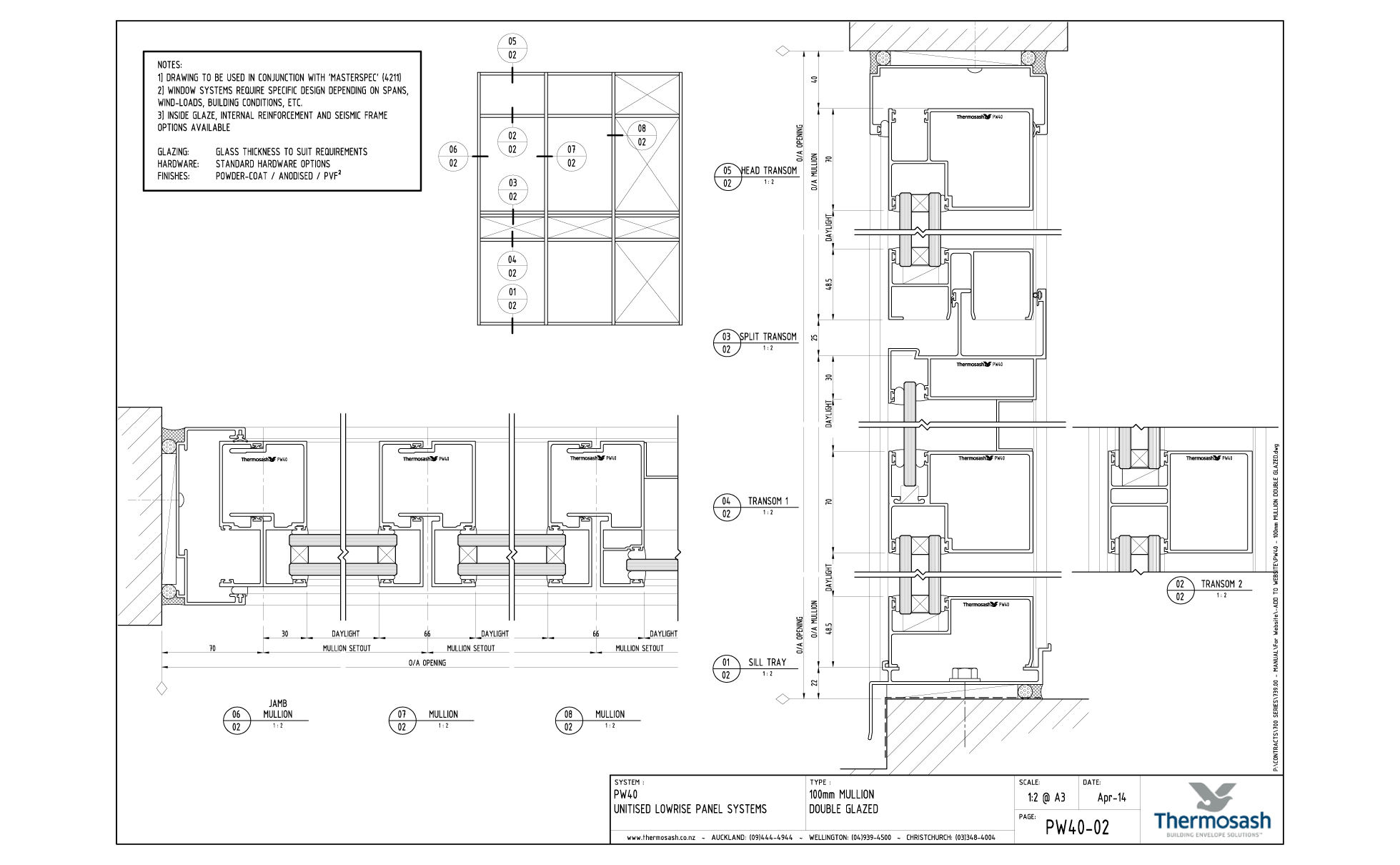
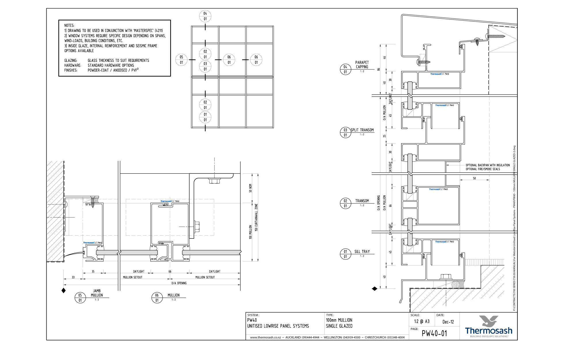
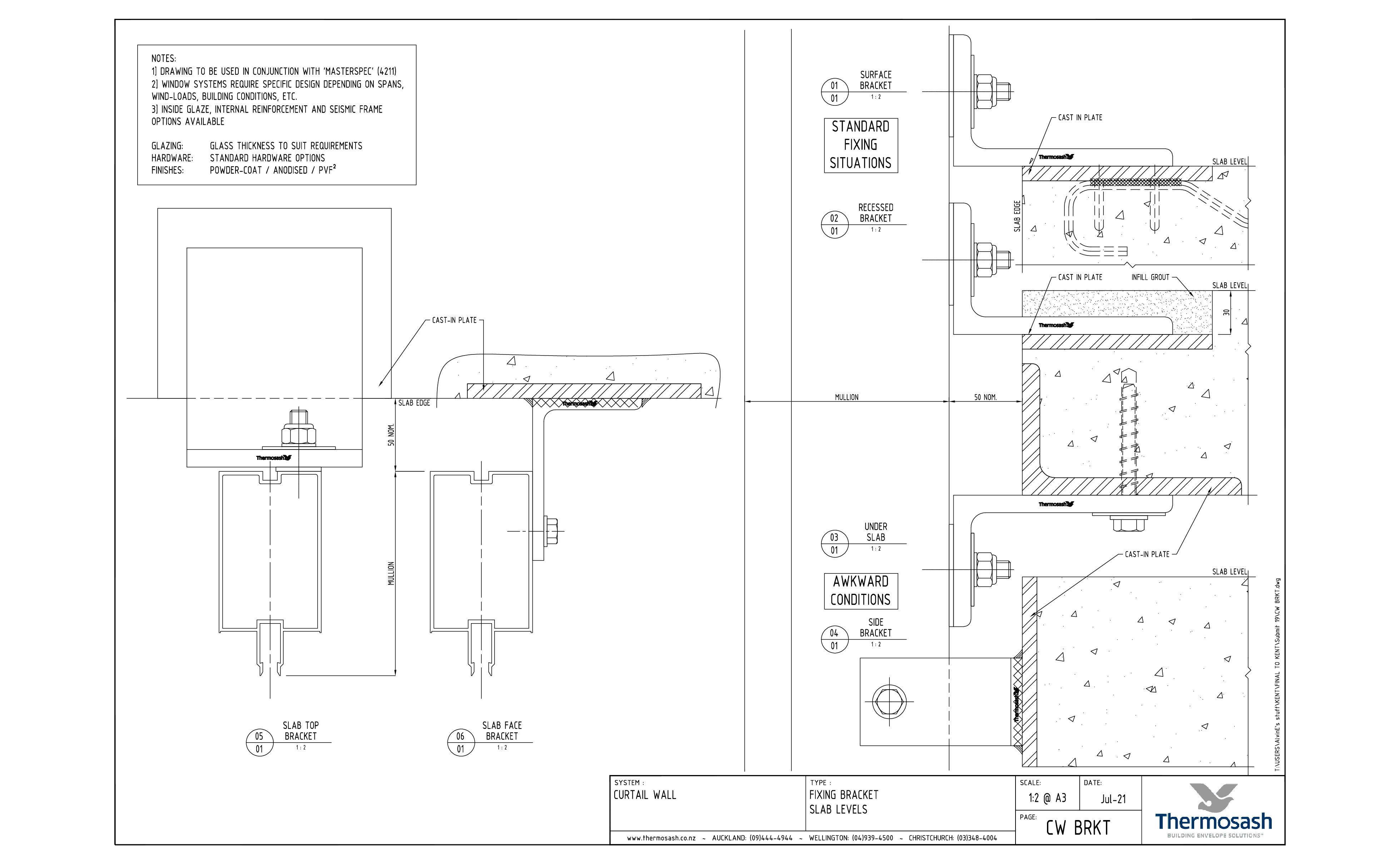
PW40

Product Description

Thermosash PW40 :  is a four sided mechanically glazed engaged curtainwall, that is; expressed horizontal transom elements and vertical mullion elements - offering a similar appearance to the high performance PW400.

This unitised curtainwall suite is suitable for low or high rise applications where small spans or where smaller panes of glass are envisioned. The PW Series Suites have been extensively used and proven in New Zealand and our export markets since 1985. 

Section Sizes

  • 75 / 100mm Mullions
  • 75 / 100mm Transoms

Maximum spanning ability

The spanning ability will vary depending on the structural system and environmental loads (e.g. wind).  Thermosash specifically engineers the best suite options to meet project requirements.

PW40 is best used for:

  • Lower floor to floor heights - greater heights are achievable with our PW400 suite
  • Sites with low wind loads
  • Smaller module sizes
  • Areas where there is low building movement

We recommend discussing your project with us early so that we can advise on the best suite solutions for your needs - please contact us.

Pressure equalised design

The weathering design of these curtainwall suites follows recognised international curtainwall design principles - rainscreen pressure equalisation and system drainage - which requires primary and secondary weathering. 

All internal cavities of the system are designed to be pressure equalised (i.e. no pressure differential between the outside face and any internal cavity). This feature allows the water which penetrates the rainscreen to drain and maintain ventilation. The rear air seal is critical to the system's weathering performance as air infiltration acts as the medium which transports water through to the building's interior, i.e. it is the prime cause of any leakage.

Non-vision rainscreen areas act as a primary water-stop, the second airseal and cavity acts as a backup to collect and drain away any water that manages to penetrate the primary rainscreen barrier, with an integral structural backpan.

Integrated Elements

Almost an unlimited type of materials can be integrated into a unitised panel, including different glass types, metals, brackets to receive externally mounted fins, louvres, venetians or building signage for example. 

Low-Carbon Aluminium

Thermosash partners with a local NZ-owned extruder achieving a lower carbon footprint than the global average - offering reduced upfront carbon emissions. (find out more about our Sustainable Aluminium).

Thermosash manufacture all of our own façade components in New Zealand, and primarily source materials were available from the New Zealand market to reduce transport distances and emissions from freight. We recycle 100% of all our metal waste.

Performance / Testing

Thermosash owns and operates the largest façade testing facility in New Zealand where we test our systems and custom designed suites to ensure compliance with the below codes or project specific requirements:

  • AS/NZS1170 (Structural Design Actions)
  • NZS4211 (Performance of Windows)
  • NZS4223 (Glazing in Buildings)
  • NZS/AS4284:2008 (Water / Air Pressure/ Air Leakage - Meets and exceeds minimum requirements)

All the Thermosash suites are independently laboratory tested to IANZ (International Accreditation New Zealand). Test certificates are available on request.

Warranty

The standard warranty is 10 years from the date of practical completion for these products. This covers workmanship and weather tightness, providing the subcontract includes fabrication, installation and glazing of all components, and the maintenance schedule is adhered to.

Maintenance

Maintaining glass, metals and stone are all particular to the environment that they are placed in: eg. marine, environmental pollution, exposure to natural washing, etc.

It is recommended by almost all material suppliers that building washing should occur every 3-6 months to prevent staining to glass and prevent environmental pollutants from corroding metals and to maintain the material warranties.

A full maintenance manual is provided on completion of a project for all the elements integrated within a project. Compliance to a maintenance schedule is essential to maintaining the quality of the installed product over time. Using Thermosash-approved facade maintenance contractor/personnel ensures the highest standards are met.

Read more Read less

Key Features

This engineered façade product is designed to accommodate:

  • building movements - both vertical and horizontal (seismic)
  • Allows for differential rates of thermal expansion and contraction
  • Connection details to accommodate construction tolerances
  • Structural member strengths comply with Code or project specification
  • Glass design and it's integration with the glazing system to ensure glass warranties are complied with

Brochures

Thermosash Unitised Facades - Total Clad Solutions

September 2025

Specification

We recommend using Masterspec 4211TS Curtainwall when specifying this suite.

CAD Downloads

PW40 - 100mm Mullion Single Glazed

Download files

PW40 - 100mm Mullion Double Glazed

Download files

PW40 - 100mm Mullion Fixing Bracket - Slab Top Mount

Download files

Thermosash Curtain Wall Fixing Bracket

Download files

Finishes

  • Polyester powdercoat - both standard and special colours available
  • Anodised - all anodised colours available - commercial grade 20 Micron finish recommended
  • PVF2 Fluorocarbon finishes - available on request

Relevant Projects

Vector Arena

Vector Arena

Auckland

Crawford Architects

Mainzeal Construction

2006

Constellation Bus Station

Constellation Bus Station

Auckland

NZ Transport Agency

Brosnan Construction

2022

Rangi Ruru Girls School

Rangi Ruru Girls School

Christchurch

McIldowie Partners Architects

Leighs Construction

2014

Novotel Christchurch Airport Hotel

Novotel Christchurch Airport Hotel

Christchurch

Warren & Mahoney Architects

Fletcher Construction

2019

UOA Parkwest 507

UOA Parkwest 507

Auckland

Jasmax

Hawkins

2019

Downer Head Office

Downer Head Office

Porirua

Aqua Ltd

Naylor Love

2011

Upper Hutt College

Upper Hutt College

Wellington

Stephenson & Turner

Mackersey Construction

2015