Thermoplank Unitised Rainscreen

Product Description

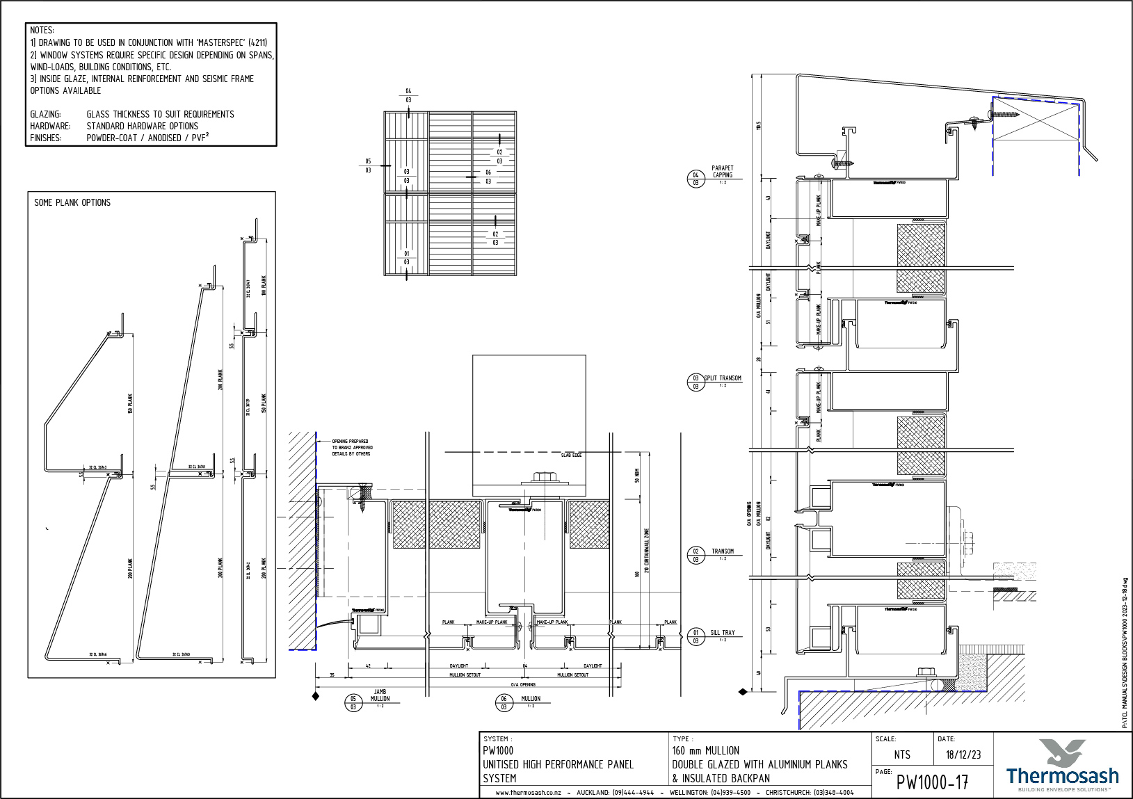
Thermoplank is extruded aluminium unitised planking which we engineer and manufacture to be installed as rainscreen, or for integration into our PW1000 Unitised High Performance Curtainwall System. The unitised system enables faster install timeframes than individual planks, saving on programme time.

Section Sizes

The designer should allow a minimum facade zone from the face of the air barrier of 60mm - this can be larger if more room for external insulation is required. 

Panel size limitations are calculated on the project location (wind zone / seismic), height, primary structure movement calculations (ULS) and eventual material selection.

We provide bespoke solutions to meet architectural design intent requirements for commercial projects.

Rigid Air Barrier

Thermoplank requires a formed air barrier wall (Rigid Air Barrier - RAB) located behind with a suitably considered primary structure (concrete panel, timber or steel framing) to receive the cladding rail system. A typical installation will require external access such as scaffolding and is best suited to lowrise applications due to the limitations of RABs in multi-storey applications.

Performance / Testing

  • AS/NZS1170 (Structural Design Actions)
  • NZS4223 (Glazing in Buildings)
  • NZS/AS4284:2008 (Water / Air Pressure/ Air Leakage)

Maximum Spanning Ability

Thermosash specifically engineers the best suite option for your project taking into consideration span, structural system, and environmental loads (e.g. wind). The spanning ability will vary depending on the above.

Low-Carbon Aluminium

Thermosash partners with a local NZ-owned extruder achieving a lower carbon footprint than the global average - offering reduced upfront carbon emissions. (find out more about our Sustainable Aluminium).

Thermosash manufacture all of our own façade components in New Zealand, and primarily source materials were available from the New Zealand market to reduce transport distances and emissions from freight. We recycle 100% of all our metal waste.

Installation

Our systems are prefabricated and glazed (if included in project scope) in a factory environment, stored if necessary, and transported for just-in-time site delivery. We have highly skilled installation teams who work safely and effectively to close in buildings rapidly.

These prefabricated and glazed panels are delivered to the floors in crates and positioned by floor mounted cranes or monorail units. The panels have interlocking legs, requiring sequential placement around the building floor before the next level can be installed.

It is highly recommended that the units are installed from ground up in predetermined directional order to maintain the best detail connection between panels. Special methodologies need to be considered when recladding a building demands a top-down approach.

Curtainwall is almost always hung from the top of each floor section (dead loaded) and attached at the base of the unit to resist windload. The Thermosash specific engineered brackets attach at each floor either on the top of the slab, to the edge of the slab or under the slab as necessitated by the project design and engineering requirements of the selected system.

Warranty

The standard warranty is 10 years from the date of practical completion for these products. This covers workmanship and weather tightness, providing the subcontract includes fabrication, installation and glazing of all components.

Maintenance

Maintaining glass, metals and stone are all particular to the environment that they are placed in, e.g. marine, environmental pollution, exposure to natural washing, etc.

It is recommended by almost all material suppliers that building washing should occur every 3-6 months to prevent staining to glass and environmental pollutants from corroding metals and to maintain the material warranties.

A full maintenance manual is provided on completion of a project for all the elements integrated within a project. Compliance to a maintenance schedule is essential to maintaining the quality of the installed product over time. Using Thermosash-approved facade maintenance contractor/personnel ensures the highest standards are met.

Read more Read less

Key Features

  • unitised panels are factory prefabricated and glazed.
  • specifically engineered to accommodate the environmental conditions and design constraints of the project:
    • accommodates building movements - both vertical and horizontal (seismic).
    • accommodates differential rates of thermal expansion and contraction.
    • connection details to accommodate construction tolerances.
    • structural member strengths comply with Code or project specification.
  • the rainscreen acts as a primary water-stop, the second rear airseal and cavity acts as a backup to collect and drain away water that manages to penetrate the primary barrier, with an integral structural backpan.
  • sizing of modules is generally only limited by the project design requirements, economic considerations, transport and site crane installation limitations.

Brochures

Thermosash Thermoplank Project Examples

October 2025

Thermosash material and finishing examples

October 2025

Specification

We recommend using Masterspec 4521TS Thermosash Commercial Windows & Doors

 

 

CAD Downloads

Thermoplank Downloads

Download files

Finishes

  • Polyester powdercoat - both standard and special colours available
  • Anodised - all anodised colours available - commercial grade 20 Micron finish recommended
  • PVF2 Fluorocarbon finishes - available on request

Relevant Projects

University of Auckland - B201

University of Auckland - B201

Auckland

Jasmax

Hawkins

2023

AUT M1 - MH Building

AUT M1 - MH Building

Auckland

Jasmax

Fletcher

2017

Taranaki Base Hospital - East Wing

Taranaki Base Hospital - East Wing

New Plymouth

Warren and Mahoney

Leighs Construction

2025

Te Ao Nui Building

Te Ao Nui Building

Palmerston North

Opus International Consultants

McMillan & Lockwood Group

2020

Massey University Innovation Complex

Massey University Innovation Complex

Auckland

Athfield Architects

Southbase Construction

2022

1-3 Unity Drive

1-3 Unity Drive

Auckland

Woods Architecture

Cape Ltd

2022