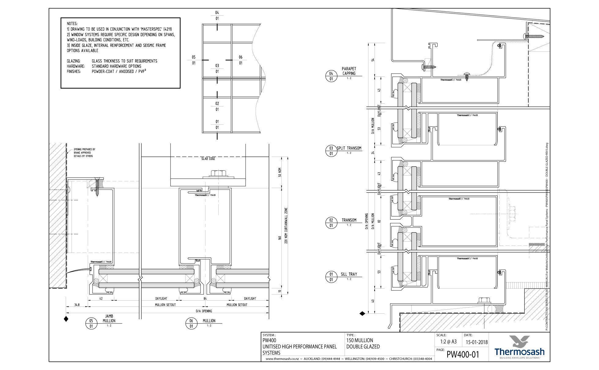
PW400

Product Description

Thermosash PW400 :  four sided mechanically glazed engaged curtainwall, that is, expressed horizontal transom elements and vertical mullion elements. 

Section Sizes: 75mm / 100mm / 150mm / 200mm

We have the ability where necessary, to structurally supplement the sections where the suite is exposed to high floor to floor spans or high wind zones, thus potentially reducing the need for additional primary or secondary structure to be provided by the Main Contractor.

Maximum Spanning Ability

Thermosash specifically engineers the best suite option for your project taking into consideration span, structural system, and environmental loads (e.g. wind). The spanning ability will vary depending on the above.

Thermosash Suites are recognized as having the largest spanning systems on the market due to our specific engineering capability and the customised nature of the work we complete.

Integrated Elements

  • brackets to receive externally mounted fins, louvres, Venetians, custom feature elements, or building signage
  • opening sashes suitable for high-rise installations can be accommodated
  • a large variety of materials can be integrated into a unitised panel, including:
    • different glass types
    • metals
    • terracotta tiles
    • large format porcelain
    • glass reinforced concrete (GRC)

Low carbon aluminium - specify Thermosash DecarbalTM

Our Thermosash DecarbalTM aluminium achieves a very low carbon footprint that significantly outperforms readily available local & global alternatives - offering reduced upfront carbon emissions that positively contribute to sustainability project goals. For up-to-date carbon figures please contact us. Find out more about our Sustainable Aluminium.

Facade Optimisation and Sustainability Reports

To achieve optimised high-performance outcomes, we offer our clients the option of a Project Sustainability Analysis that covers different aspects of the full sustainability cycle. When specifying our facade systems, clients can engage us to implement one or several of our Facade Optimisation Strategies to achieve their project sustainability goals. To gain the most from our strategies, talk to us early on in the design phase of your project.

 

Pressure equalised design

The weathering design of these curtainwall suites follows recognised international curtainwall design principles - rainscreen pressure equalisation and system drainage - which requires primary and secondary weathering. 

All internal cavities of the system are designed to be pressure equalised (i.e. no pressure differential between the outside face and any internal cavity). This feature allows the water which penetrates the rainscreen to drain and maintain ventilation. The rear air seal is critical to the system's weathering performance as air infiltration acts as the medium which transports water through to the building's interior, i.e. it is the prime cause of any leakage.

Non-vision rainscreen areas act as a primary water-stop, the second airseal and cavity acts as a backup to collect and drain away any water that manages to penetrate the primary rainscreen barrier, with an integral structural backpan.

Engineering

We custom design all our suites to suit our projects to maximise the efficiencies within the suite and often to incorporate added elements or unique building structures, building movements or floor heights.

Installation

Our systems are prefabricated and glazed in a factory environment, stored if necessary, and transported for just-in-time site delivery. We have highly skilled installation teams who work safely and effectively to close in buildings rapidly.

These prefabricated and glazed panels are delivered to the floors in crates and positioned by floor mounted cranes or monorail units. The panels have interlocking legs, requiring sequential placement around the building floor before the next level can be installed.

It is highly recommended that the units are installed from ground up in predetermined directional order to maintain the best detail connection between panels. Special methodologies need to be considered when recladding a building demands a top-down approach.

Curtainwall is almost always hung from the top of each floor section (dead loaded) and attached at the base of the unit to resist windload. The Thermosash specific engineered brackets attach at each floor either on the top of the slab, to the edge of the slab or under the slab as necessitated by the project design and engineering requirements of the selected system.

Performance / Testing

Thermosash owns and operates the largest façade testing facility in New Zealand where we test our systems and custom designed suites to ensure compliance with the below codes or project specific requirements:

  • AS/NZS1170 (Structural Design Actions)
  • NZS4223 (Glazing in Buildings)
  • NZS/AS4284:2008 (Water / Air Pressure/ Air Leakage - Meets and exceeds minimum requirements)

All the Thermosash suites are independently laboratory tested to IANZ (International Accreditation New Zealand). Test certificates are available on request.

Warranty

The standard warranty is 10 years from the date of practical completion for these products. This covers workmanship and weather tightness, providing the subcontract includes fabrication, installation and glazing of all components, and the maintenance schedule is adhered to.

Maintenance

Maintaining glass, metals and stone are all particular to the environment that they are placed in: eg. marine, environmental pollution, exposure to natural washing, etc.

It is recommended by almost all material suppliers that building washing should occur every 3-6 months to prevent staining to glass and prevent environmental pollutants from corroding metals and to maintain the material warranties.

A full maintenance manual is provided on completion of a project for all the elements integrated within a project. Compliance to a maintenance schedule is essential to maintaining the quality of the installed product over time. Using Thermosash-approved facade maintenance contractor/personnel ensures the highest standards are met.

Read more Read less

Key Features

This engineered façade product is designed to accommodate:

  • building movements - both vertical and horizontal (seismic)
  • Allows for differential rates of thermal expansion and contraction
  • Connection details to accommodate construction tolerances
  • Structural member strengths comply with Code or project specification
  • Glass design and it's integration with the glazing system to ensure glass warranties are complied with

Brochures

PW400 & PW400-TB Product Disclosure - documents package

2023

Thermosash PW400 & PW400-TB Unitised High Performance Curtainwall

September 2025

Thermosash Unitised Facades - Total Clad Solutions

September 2025

Specification

We recommend using Masterspec 4211TS Thermosash Curtain Walling when specifying this suite.

CAD Downloads

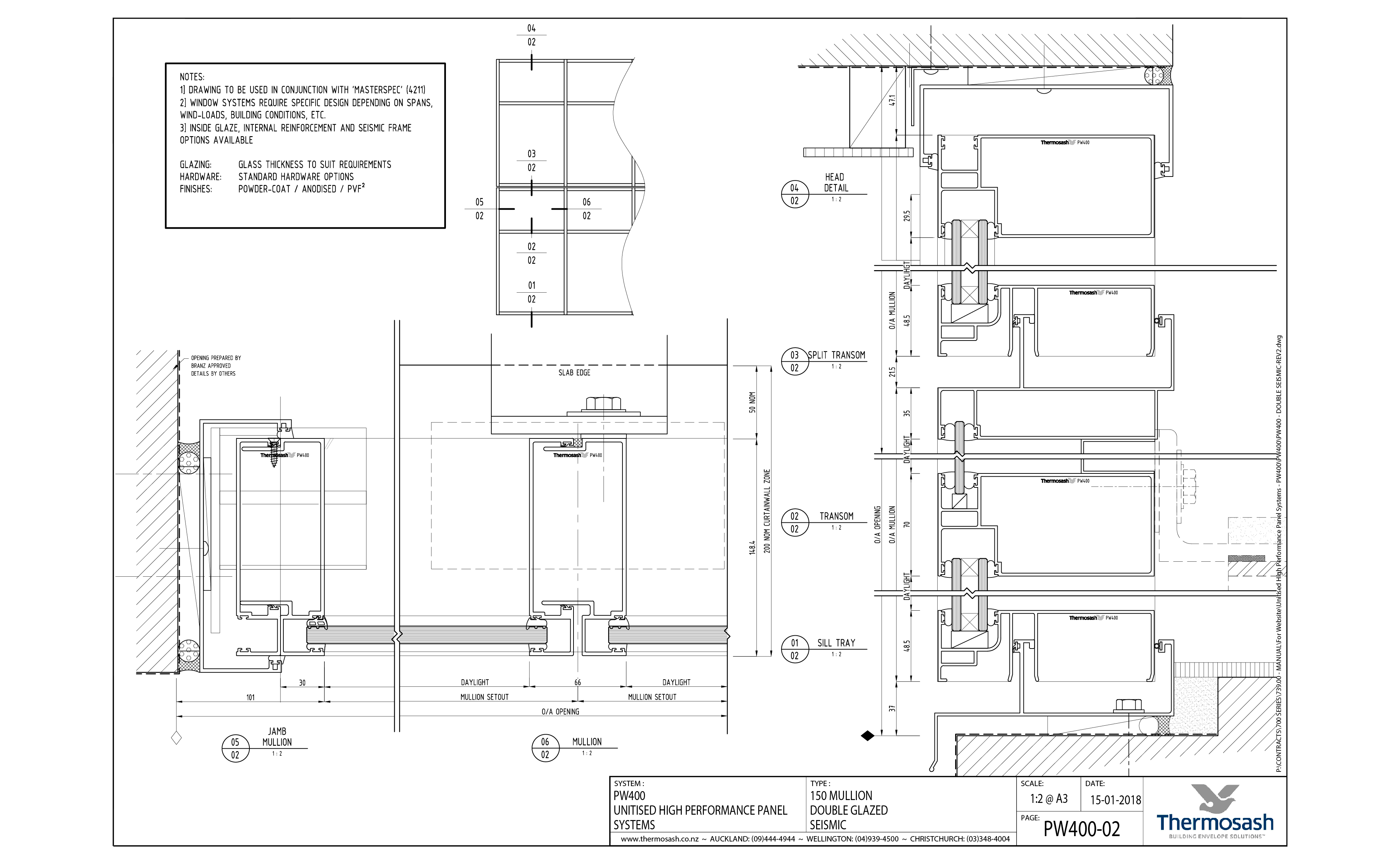
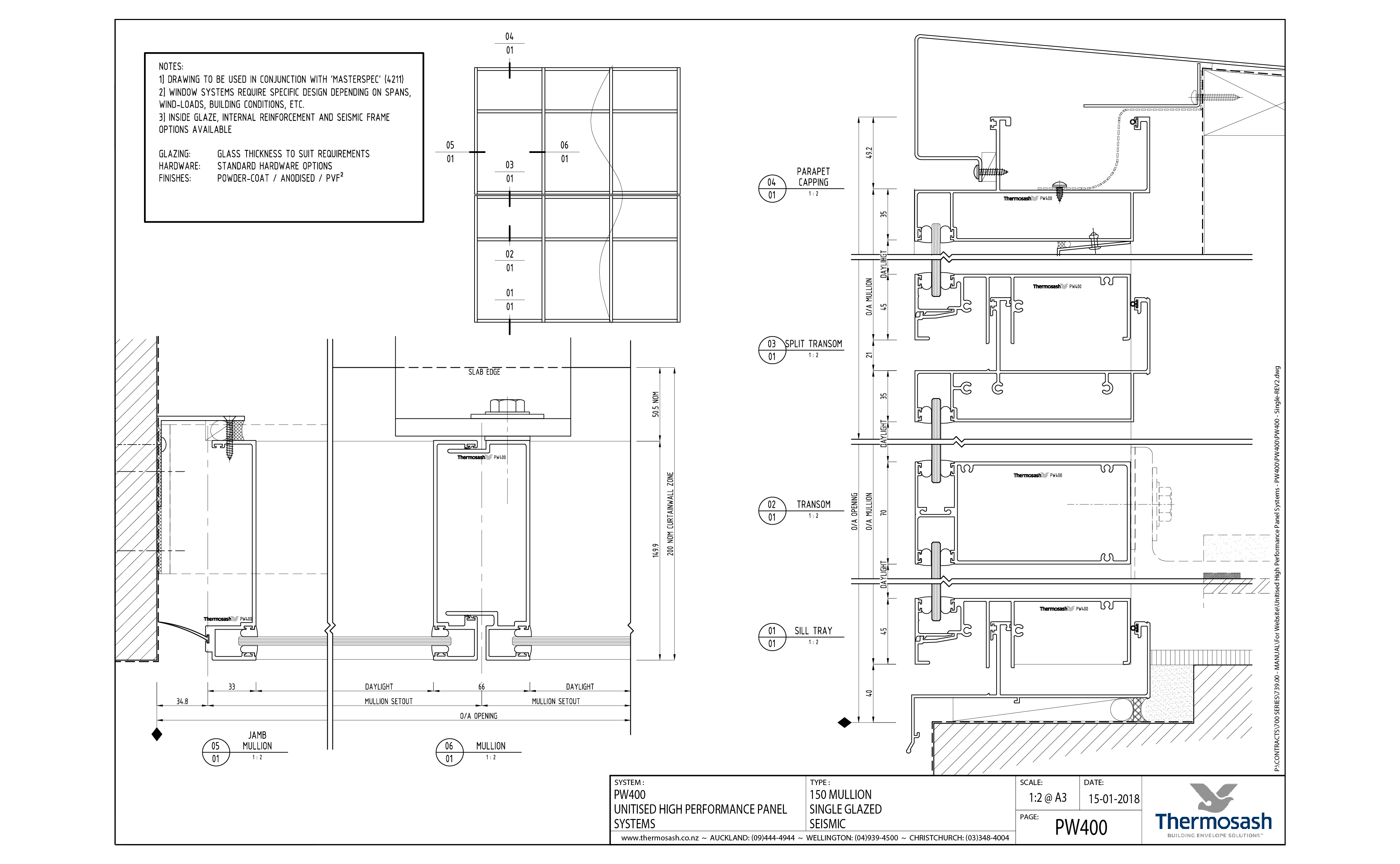
PW400 - 150mm Mullion Single Glazed Seismic

Download files

PW400 - 150mm Mullion Double Glazed

Download files

PW400 - 150mm Mullion Double Glazed Seismic

Download files

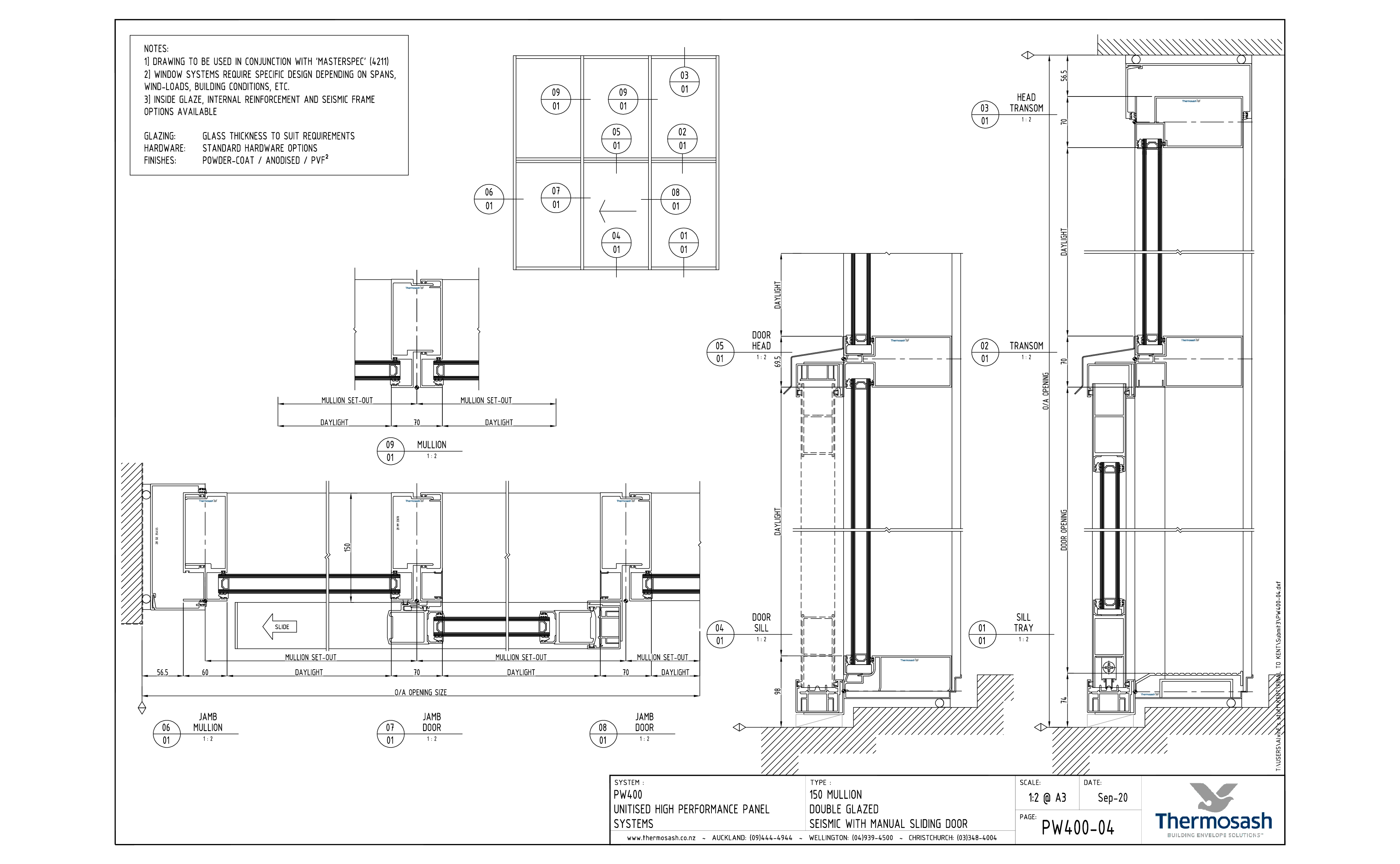
PW400 - 150mm Mullion Double Glazed Seismic with Manual Slider

Download files

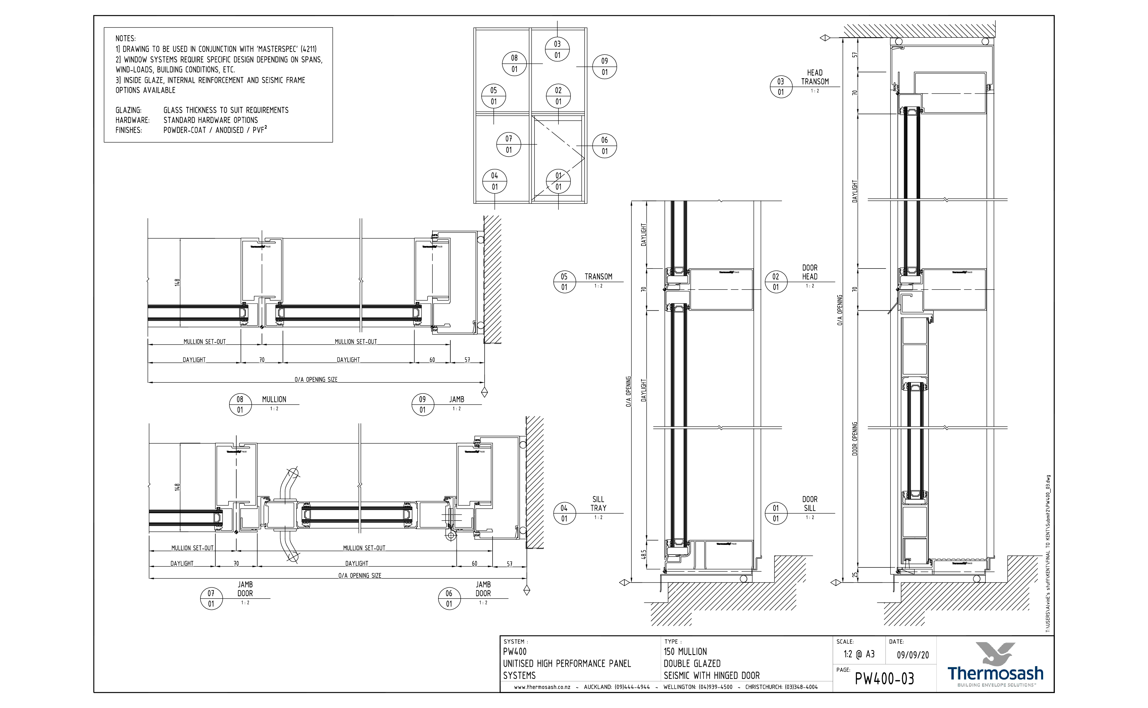
PW400 - 150mm Mullion Double Glazed Seismic with Hinged Door

Download files

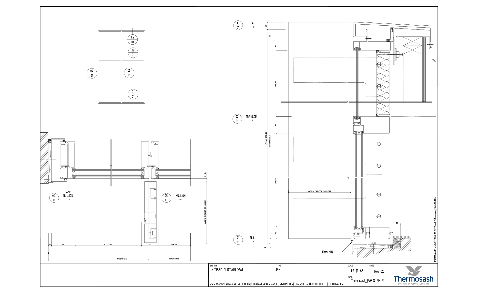
PW400 - Fin

Download files

Thermosash Curtain Wall Fixing Bracket

Download files

Finishes

  • Polyester powder coat - both standard and special colours available.
  • Anodised - all anodised colours available - commercial grade 20 micron finish recommended.
  • PVF2 Fluorocarbon finishes - available on request.

Relevant Projects

Showplace

Showplace

Christchurch

Wilson & Hill Architects

Hanham & Philp Contractors

2008

Wellington Hospital

Wellington Hospital

Wellington

Craig Craig Moller

Fletcher

2009

Karori Library

Karori Library

Wellington

Warren and Mahoney

Parker Trust

2005

Victoria University - Training & Research Building

Victoria University - Training & Research Building

Wellington

Jasmax

Mainzeal

2010

Waitakere & Unitec Library

Waitakere & Unitec Library

Auckland

Architectus & Athfield Architects

Fletchers

2006

UOA Engineering - 405

UOA Engineering - 405

Auckland

Jasmax

Hawkins

2019