
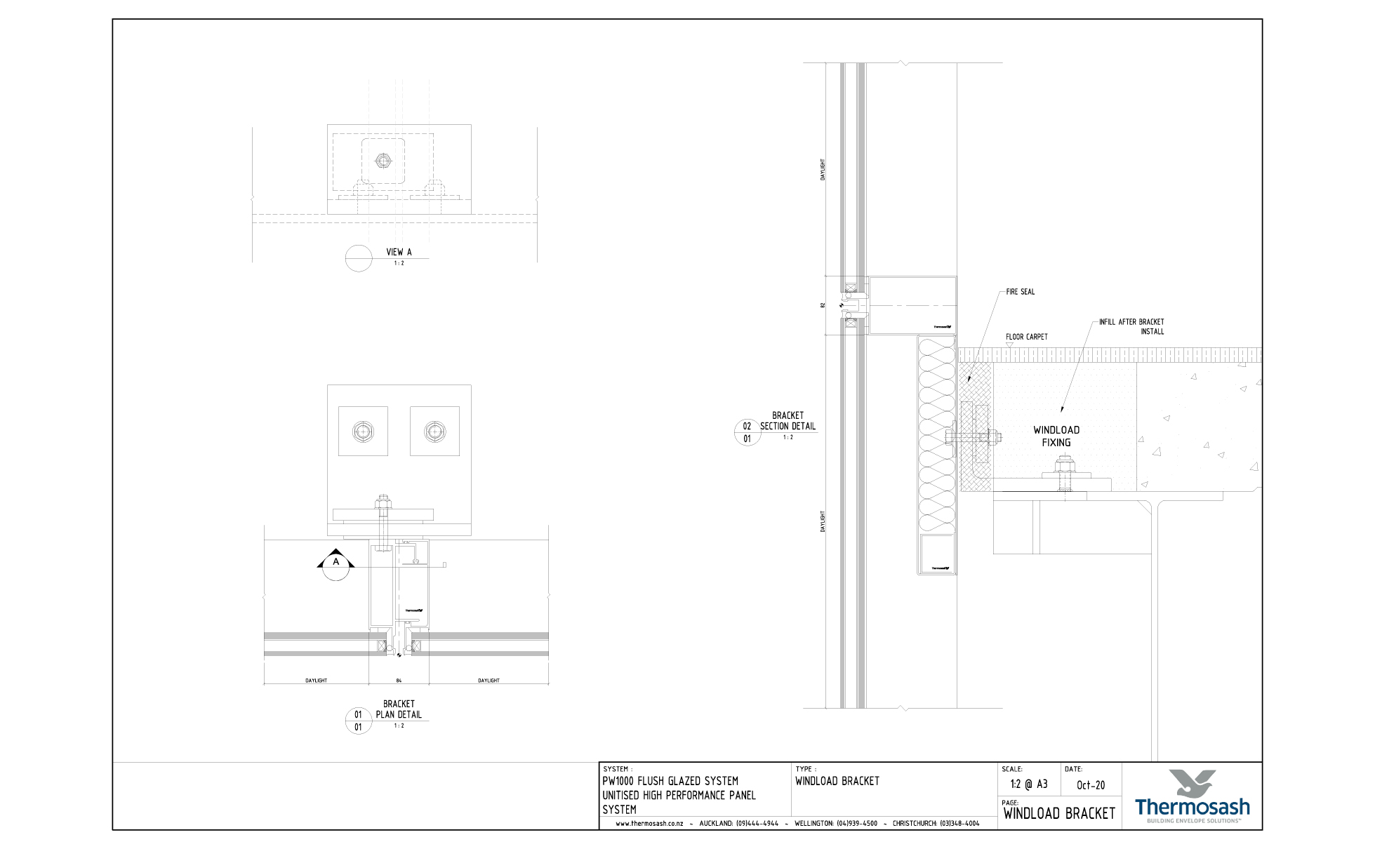
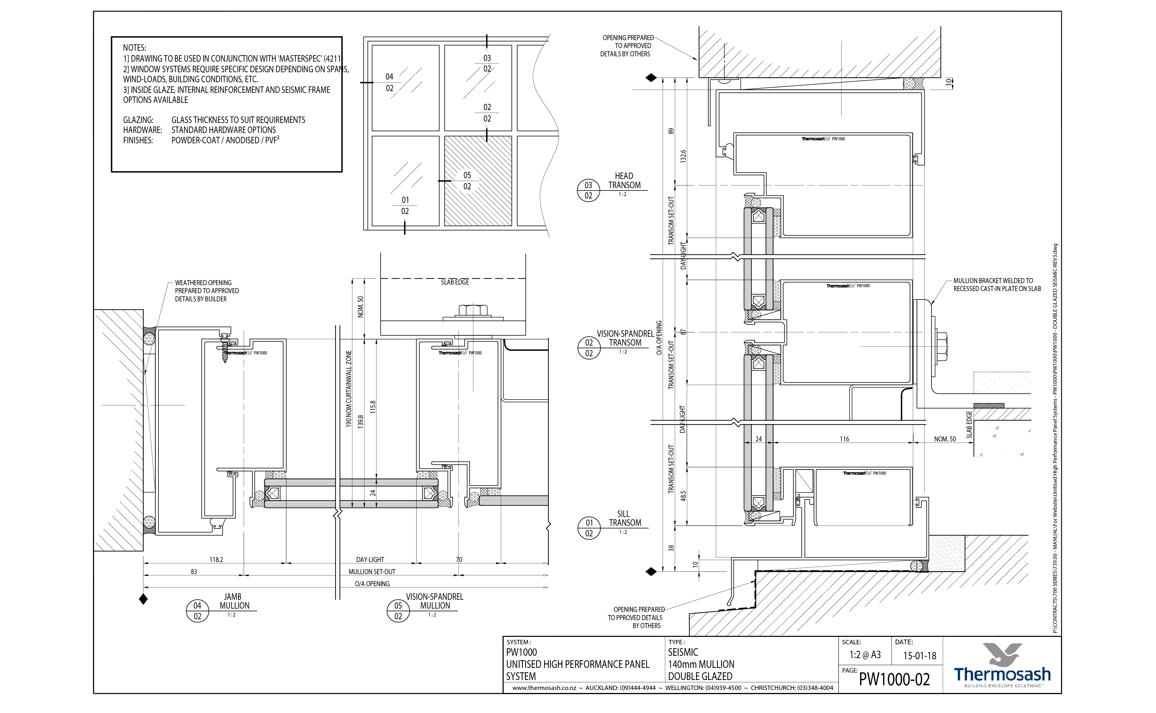
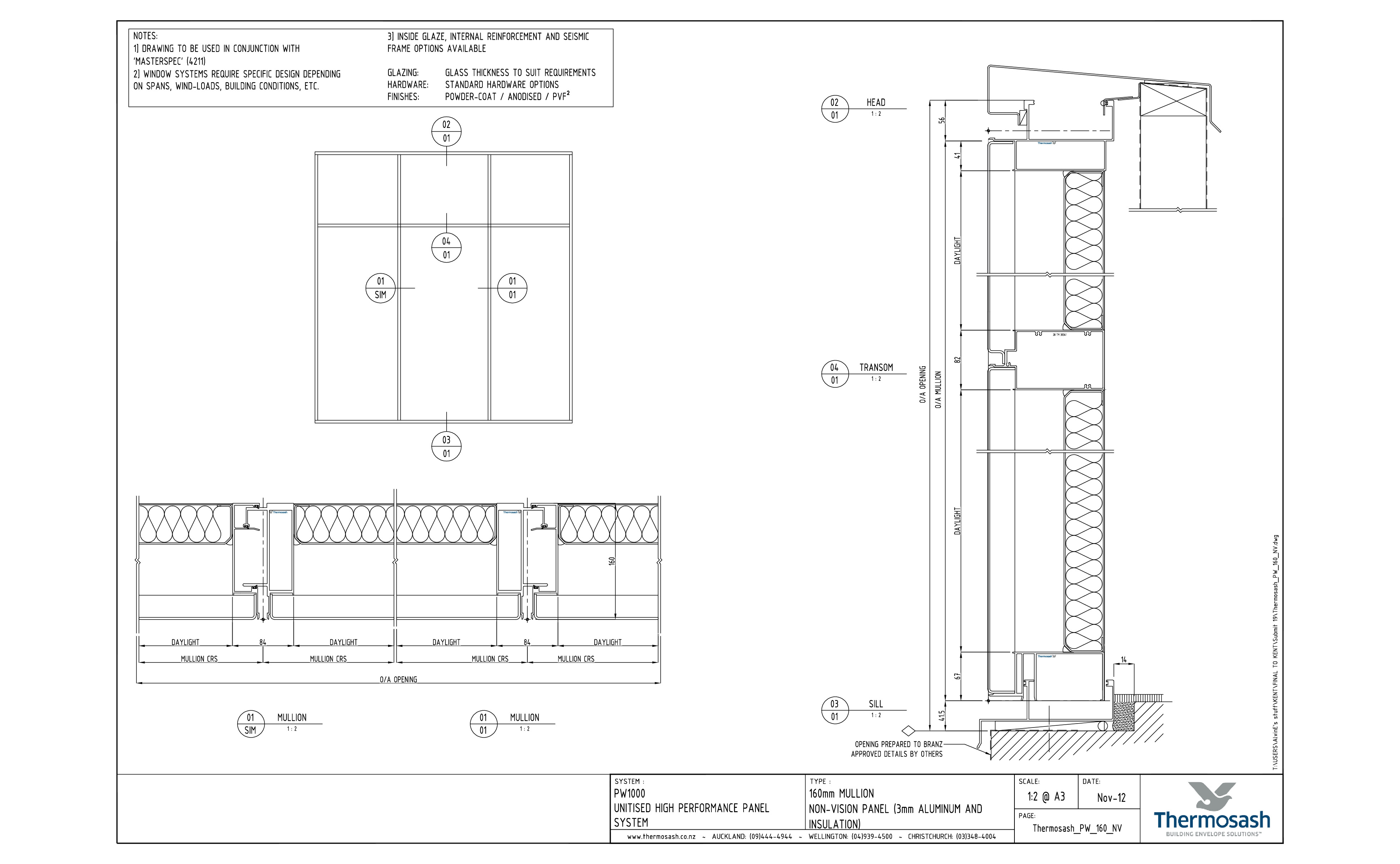
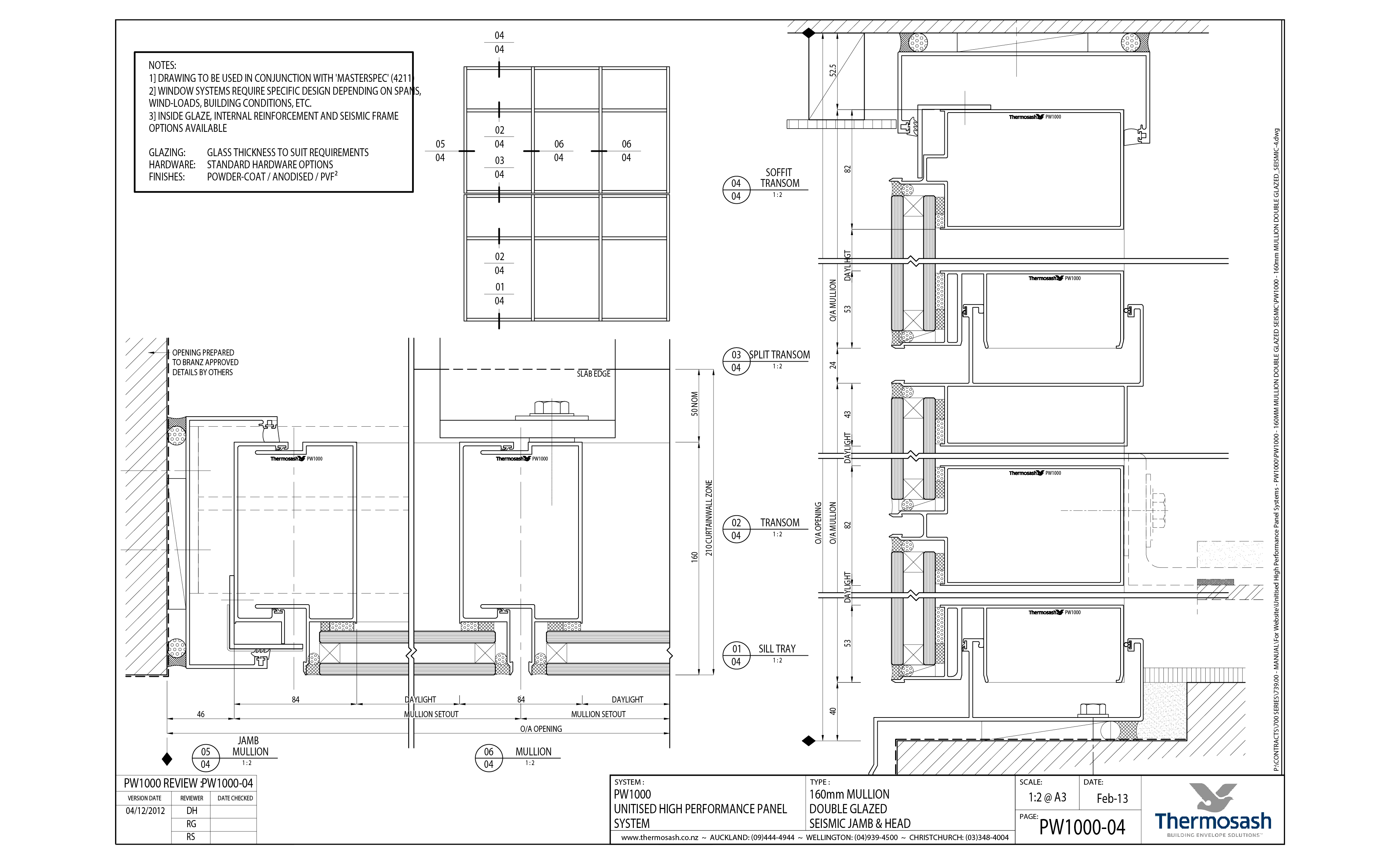
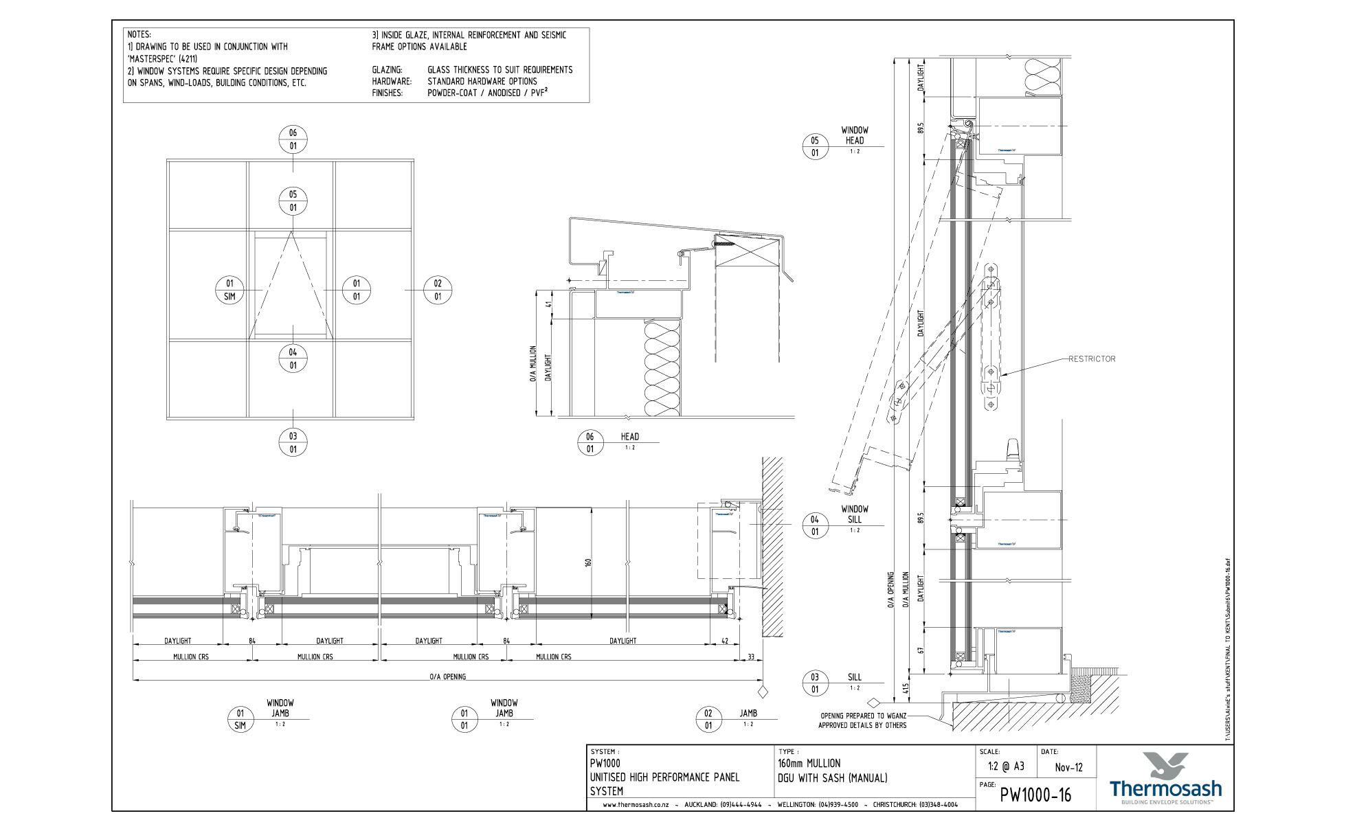
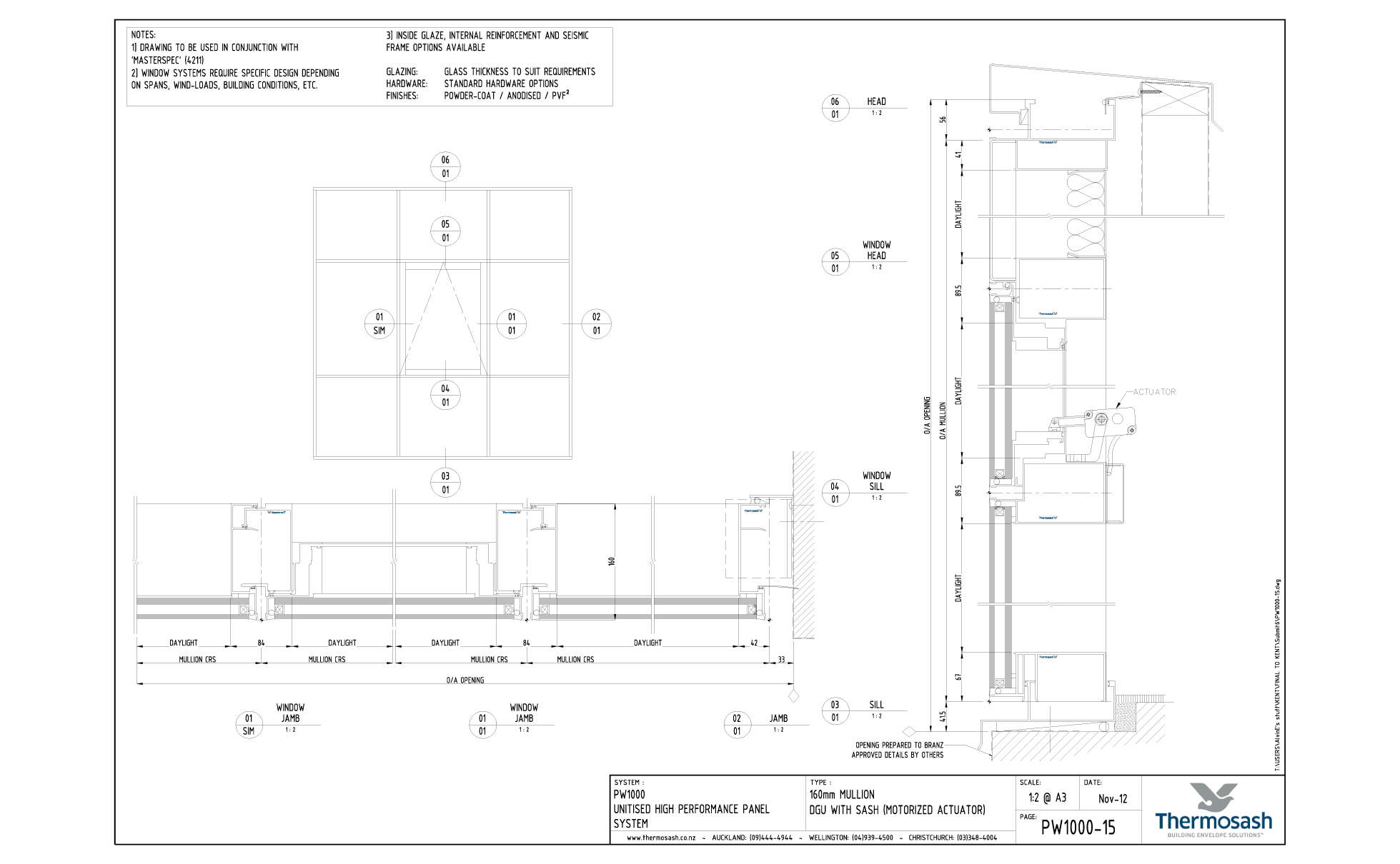
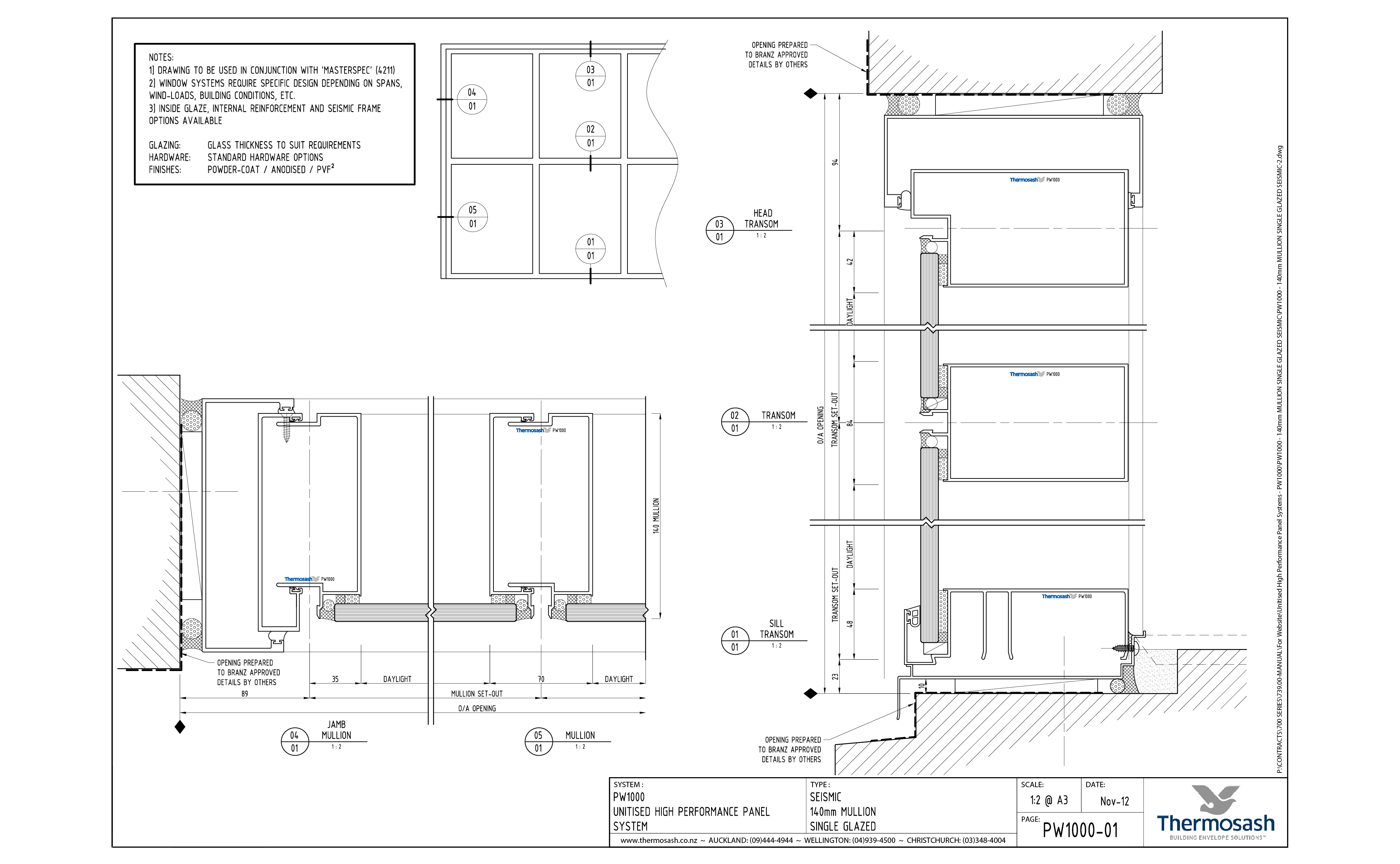
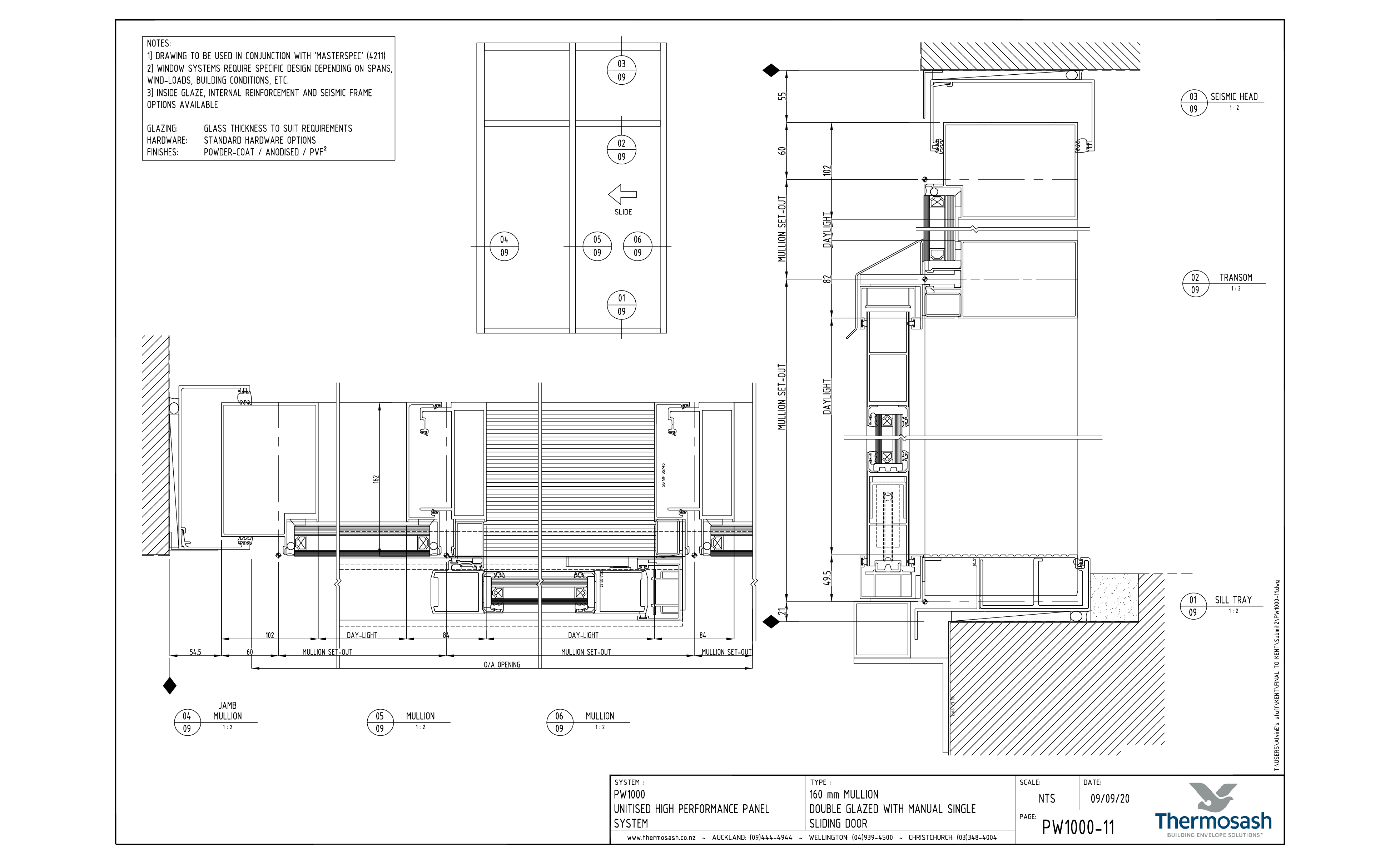
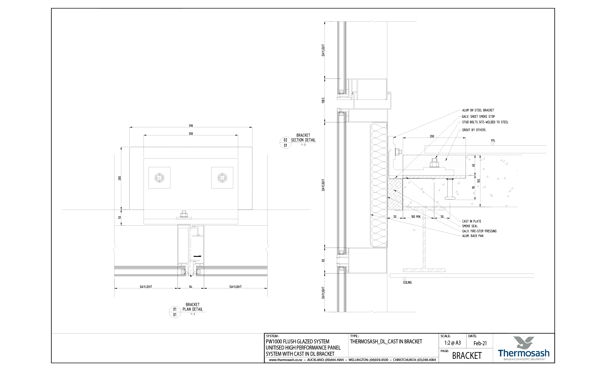
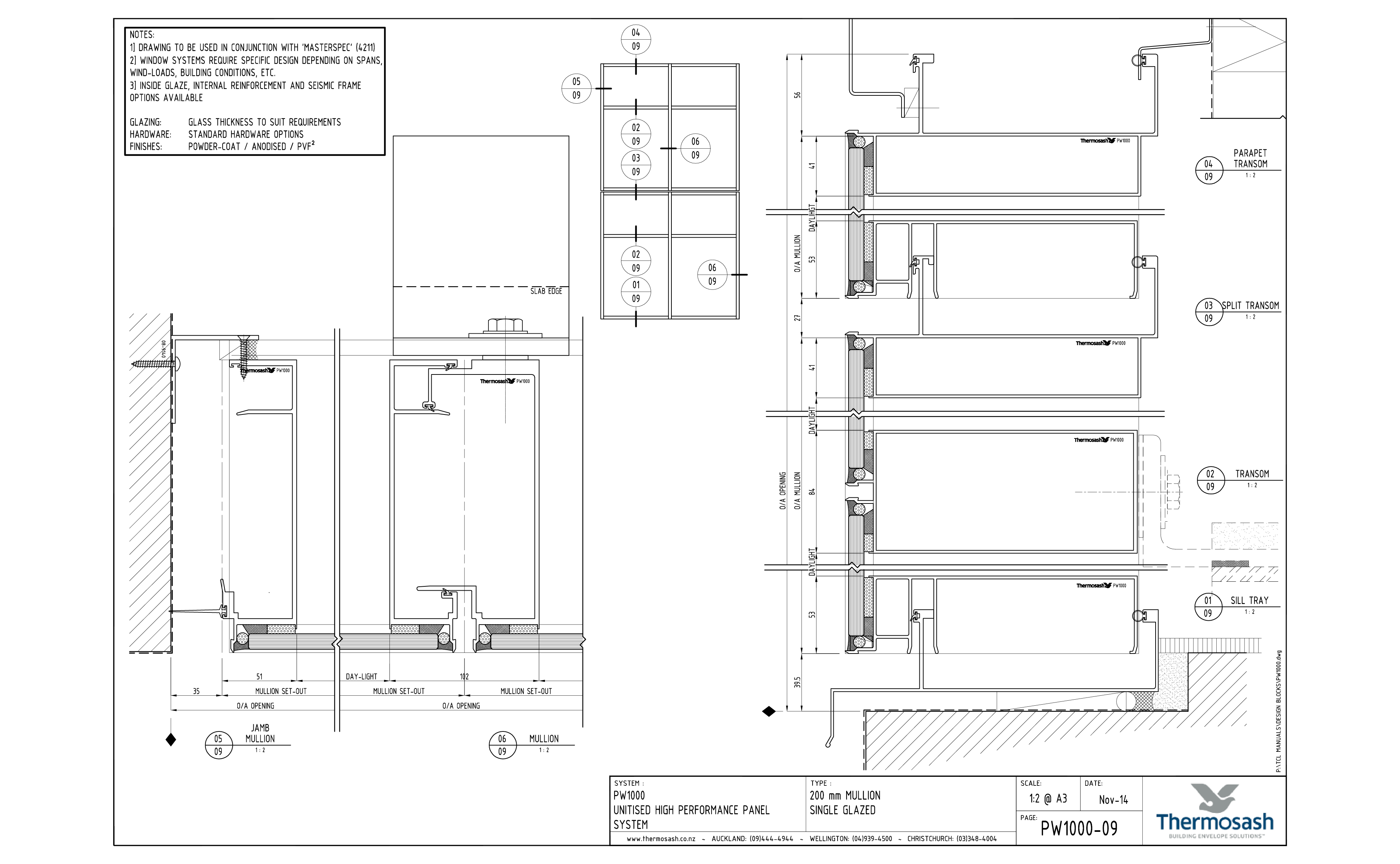
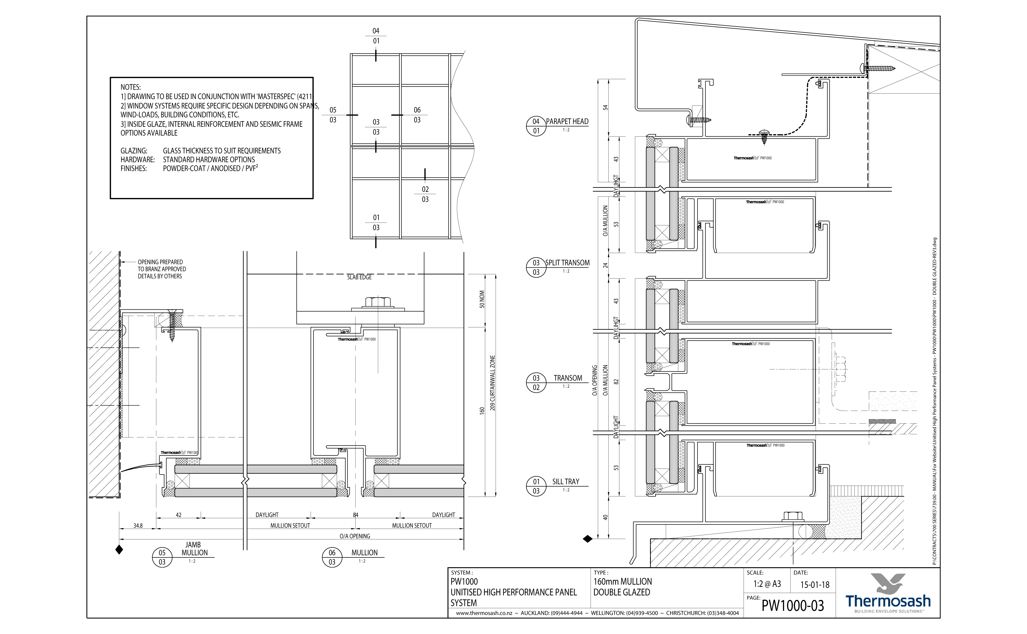
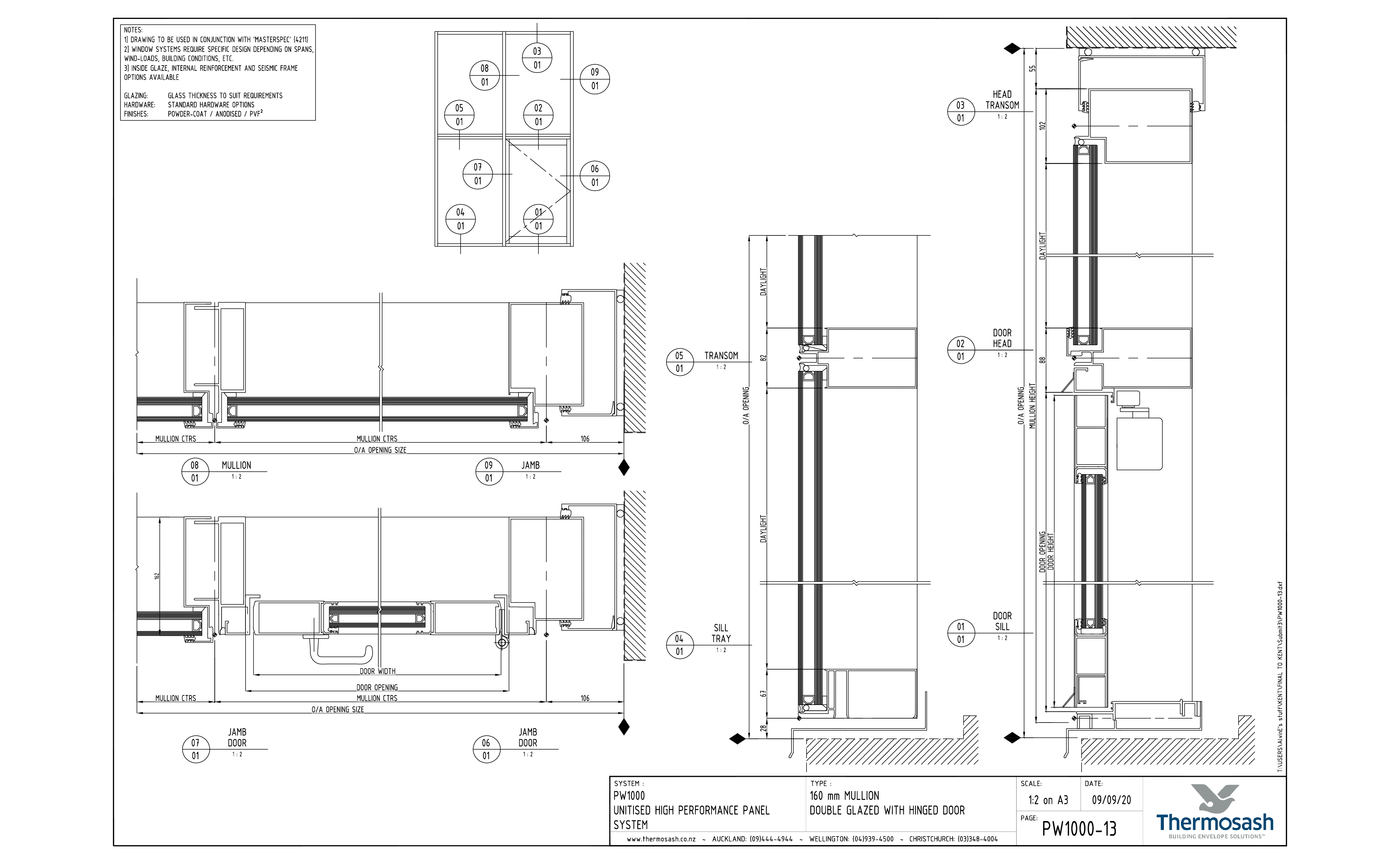
The Thermosash PW1000 is a four sided structurally glazed curtainwall suite designed for highrise or lowrise applications where the project has large spans or large panes of glass requiring higher strength systems.
The Thermosash PW1000 is a four sided structurally glazed curtainwall suite designed for highrise or lowrise applications where the project has large spans or large panes of glass requiring higher strength systems.
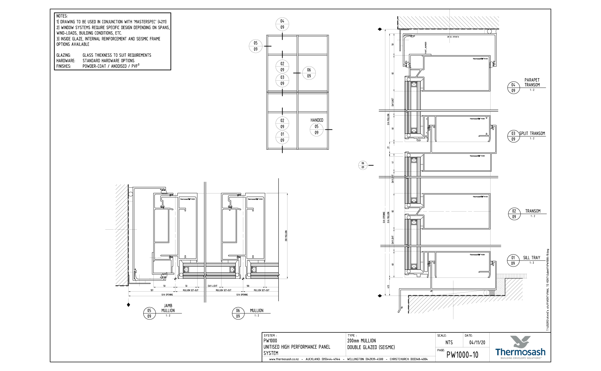
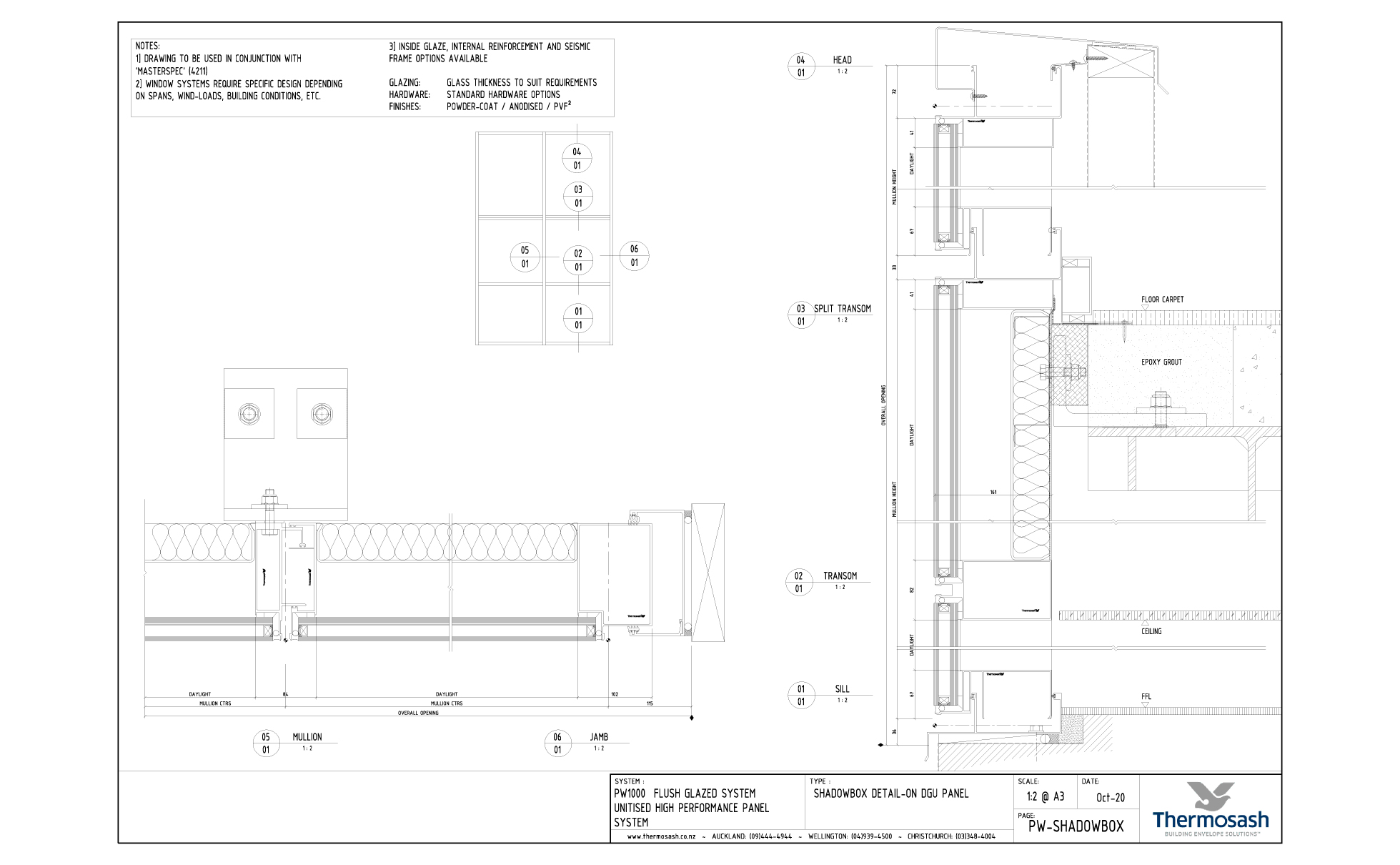
We recommend using Masterspec 4211TS Curtainwall when specifying this suite.