Delta 40 - Commercial

Door, Window, Slider Suite

Product Description

The Delta Commercial Suite - aluminium windows, doors and sliders - an extremely robust and versatile range offering exceptional performance. The suite has been developed and progressively upgraded from the original 1970s design and installed in hundreds of buildings across New Zealand to become a market leader. An outstanding testimonial for this product comes from Wispeco, the largest window manufacturer in the African Continent who have sought technology agreements from Thermosash for this suite.

Type and Frame Size

Single and double-glazed options are available.

Fixed window frames

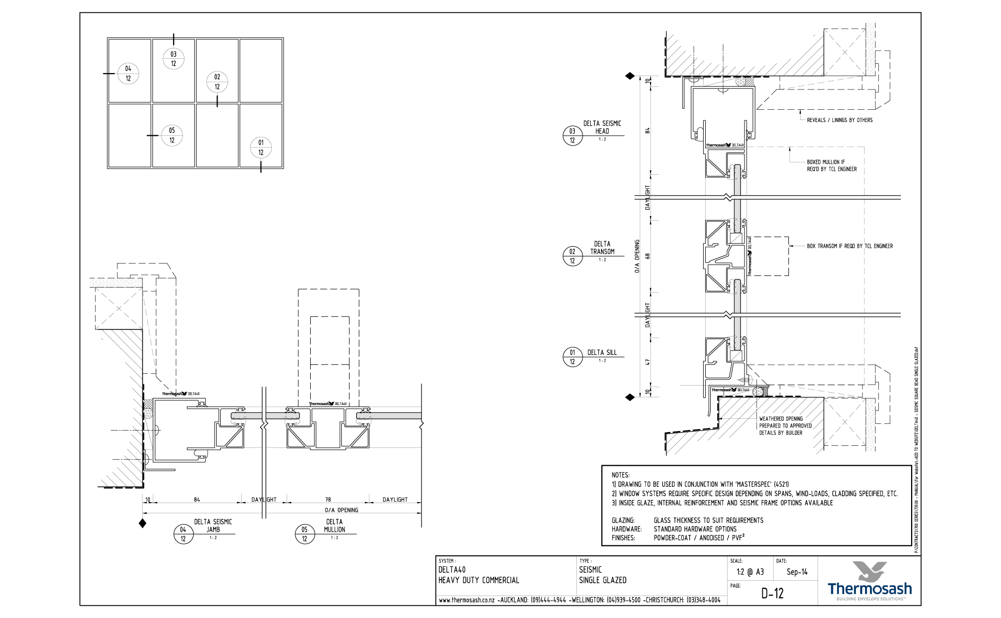
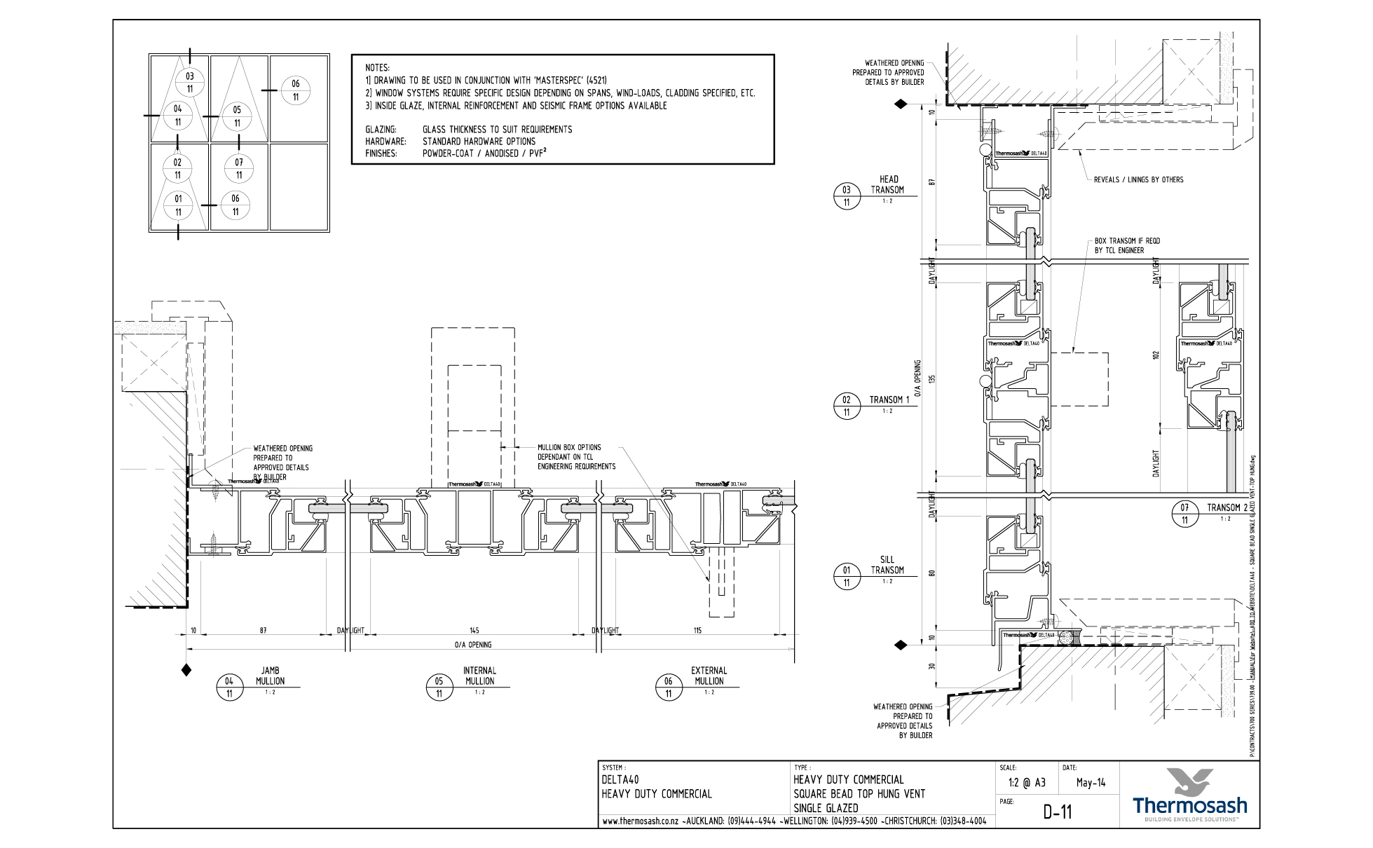
  • 41mm (non-seismic)  |  61mm Seismic.

Awning / Sliding / Hopper / Spinner window inserts:

  • 30mm

Hinged Doors:

  • 47mm Heavy Duty.

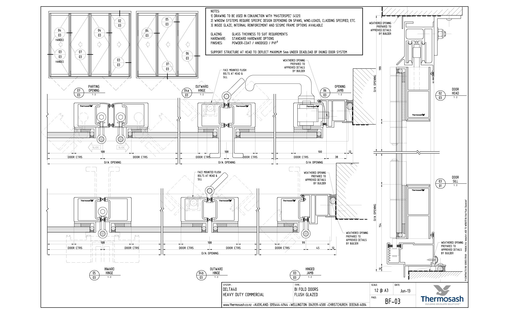
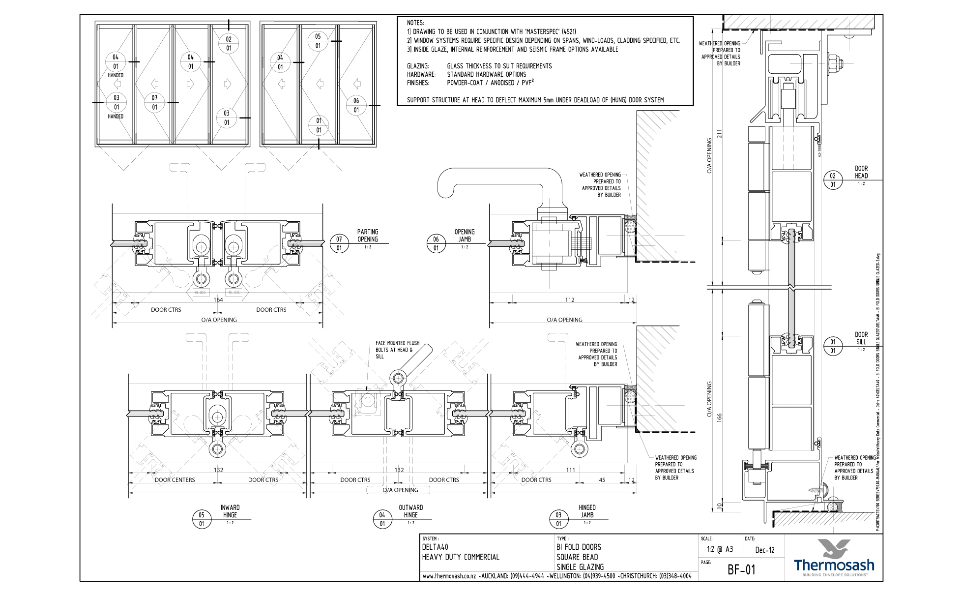
Bifold Doors:

  • 47mm Heavy Duty.

Glazing pocket size:

  • 4mm - 28mm

Aluminium sliding door types are designed to project requirements, including oversized, heavy duty and industrial with single, and multiple stacking options.

Integration

The Delta Commercial Suite is a robust adaptable system which can be easily configured according to practical design parameters within the same perimeter frame, or seismic frame (if required).

  • All aluminium windows, doors and sliders can be integrated seamlessly with Thermosash curtainwall ranges - refer drawing details for correct set outs, rebates and flashing details etc.
  • Single bank 40mm Mechanical Air Louvres can be integrated into aluminium doors.

Low carbon aluminium - specify Thermosash DecarbalTM

Our Thermosash DecarbalTM aluminium achieves a very low carbon footprint that significantly outperforms readily available local & global alternatives - offering reduced upfront carbon emissions that positively contribute to sustainability project goals. For up-to-date carbon figures please contact us.

Facade Optimisation and Sustainability Reports

To achieve optimised high-performance outcomes, we offer our clients the option of a Project Sustainability Analysis that covers different aspects of the full sustainability cycle. When specifying our facade systems, clients can engage us to implement one or several of our Facade Optimisation Strategies to achieve their project sustainability goals. T

To gain the most from our systems and strategies, talk to us early in the design phase of your project.

Performance / Testing

Thermosash owns and operates the largest façade testing facility in New Zealand where we test our systems and custom designed suites to ensure compliance with the below codes or project specific requirements:

  • AS/NZS1170 (Structural Design Actions)
  • NZS4211 (Performance of Windows)
  • NZS4223 (Glazing in Buildings)
  • NZS/AS4284:2008 (Water / Air Pressure/ Air Leakage - Meets and exceeds minimum requirements)

All the Thermosash suites are independently laboratory tested to IANZ (International Accreditation New Zealand). Test certificates are available on request.

Maximum spanning ability

Thermosash specifically engineers the best suite option for your project taking into consideration span, structural system, and environmental loads (e.g. wind). The spanning ability will vary depending on the above.

Thermosash Suites are recognized as having the largest spanning systems on the market due to our specific engineering capability and the customised nature of the work we complete.

Warranty

The standard warranty is 10 years from the date of practical completion for these products. This covers workmanship and weather tightness, providing the subcontract includes fabrication, installation and glazing of all components, and the maintenance schedule is adhered to.

Maintenance

Maintaining glass, metals and stone are all particular to the environment that they are placed in: eg. marine, environmental pollution, exposure to natural washing, etc.

It is recommended by almost all material suppliers that building washing should occur every 3-6 months to prevent staining to glass and prevent environmental pollutants from corroding metals and to maintain the material warranties.

A full maintenance manual is provided on completion of a project for all the elements integrated within a project. Compliance to a maintenance schedule is essential to maintaining the quality of the installed product over time. Using Thermosash-approved facade maintenance contractor/personnel ensures the highest standards are met.

Read more Read less

Key Features

The aluminium window, door and sliding systems are easily configured:

    • Uniquely tenoned for strength.
    • Specifically engineered sashes - with various configurations - sliding windows, awning, casement, hopper and spinner.  Sashes can be glazed internally or externally.
    • Can accommodate varying thickness of glass, DGU, or panel combination from 4mm to 28mm.
    • Integrates with seismic frames or transoms.
    • Integrated windows and doors. 
    • Single bank 40mm Mechanical Louvres can be integrated into aluminium doors.
  • An extremely versatile product - outer frame construction - tenoned in a unique manner to provide a very strong and twist-free connection which removes the reliance on assembly screws for strength and small joint sealant for weathering of fabricated joints.
  • An integrated wide ranging robust product range which can be fitted with awning, casement, hopper, spinner (i.e. reversible) sliding sashes and doors all within the same frame design - inside / outside glazed and seismic frame.
  • Sashes are mitred and crimped or cleated to provide superior torsional strength, enabling large sashes to be provided and which are capable of large spans.
  • Sashes are designed with pressure seals internally (rear airseal) and externally to the heads and jambs to provide high performance rainscreen pressure equalised weathering.
  • Sashes have an integral drainage channel in the web of the section, eliminating the need for externally applied weather bars.
  • The system is generally dry glazed with high quality Santoprene gaskets.
  • Glazing rebates of 22mm comply with minimum required commercial glass engagements and edge clearances for sophisticated high performance architectural glass products (particularly insulated glass units). An important design requirement to obtain glass warranties.
  • Delta windows can accommodate virtually any thickness of glass or panel from 4mm to 28mm.
  • Delta windows integrate with perimeter seismic frames and (where required) seismic transoms to meet specified vertical or horizontal building movements (internally or externally glazed). This generally enables installation of the product in highrise applications from within the building, removing the need for costly external scaffolding.
  • Specifically designed extruded sill trays are provided on all products to ensure rainscreen pressure equalised drainage principles are maintained. This design feature ensures fixings do not penetrate critical weathering lines and is particularly important with long-run coupled strip window units, a common feature on commercial window projects.

Brochures

Thermosash Delta 40 Commercial Unitised Window & Door Suite - Brochure

2025

Delta 40 Commercial Product Disclosure - documents package

2023

Specification

We recommend using Masterspec 4521TS Thermosash Commercial Windows & Doors when specifying this suite.

CAD Downloads

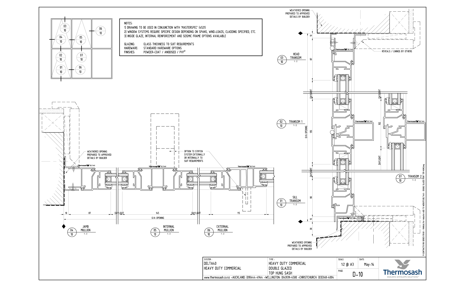
Delta 40 Commercial - Square Bead Single Glazed

Download files

Delta 40 Commercial - Square Bead Single Glazed Top Hung Vent

Download files

Delta 40 Commercial - Seismic Square Bead Single Glazed

Download files

Delta 40 Commercial - Sloped Bead Single Glazed

Download files

Delta 40 Commercial - Sloped Bead Top Hung Vent Single Glazed

Download files

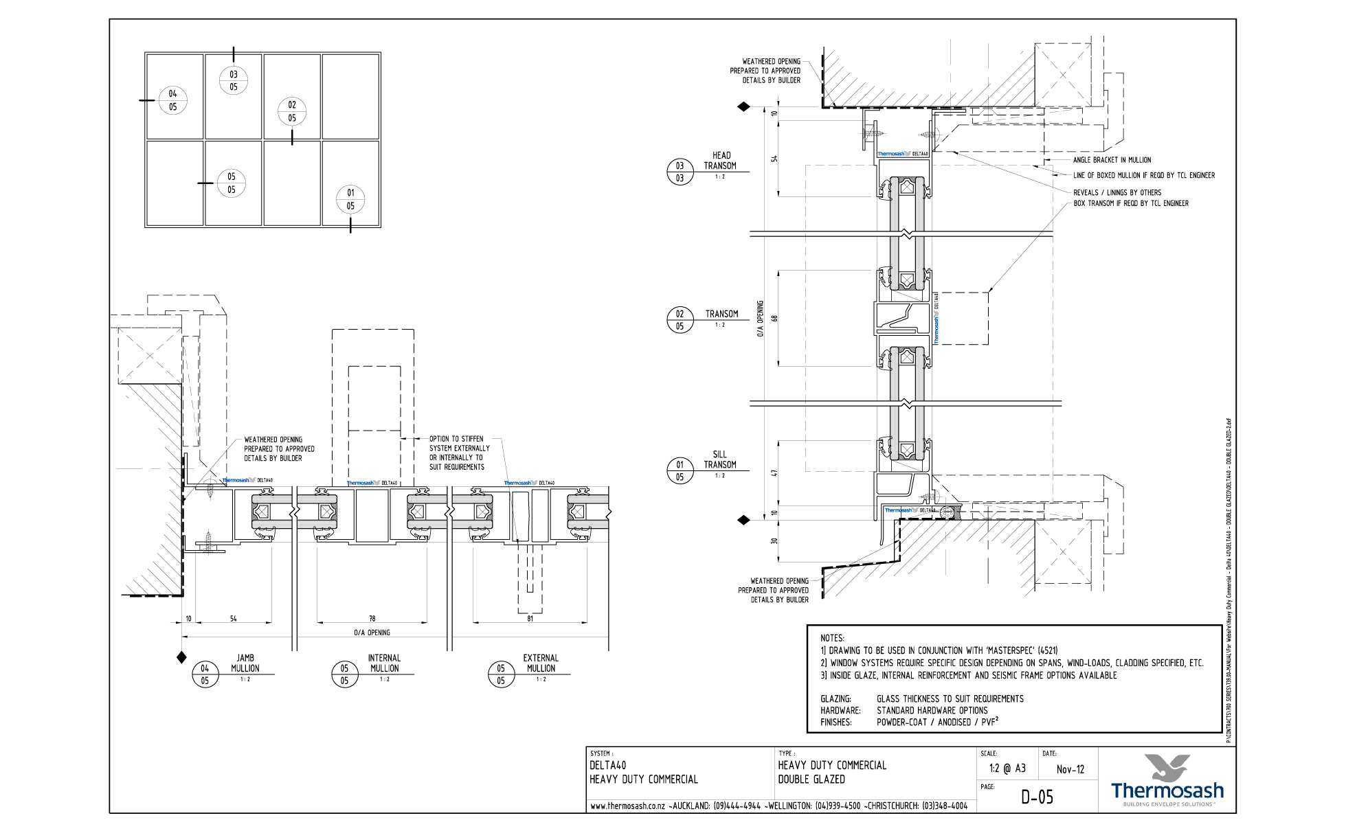
Delta 40 Commercial - Double Glazed

Download files

Delta 40 Commercial - Double Glazed Top Hung Sash

Download files

Delta 40 Commercial - Seismic Double Glazed

Download files

Delta 40 Commercial - Slider Single Glazed Double Stacked

Download files

Delta 40 Commercial - Slider Double Glazed Double Stacked

Download files

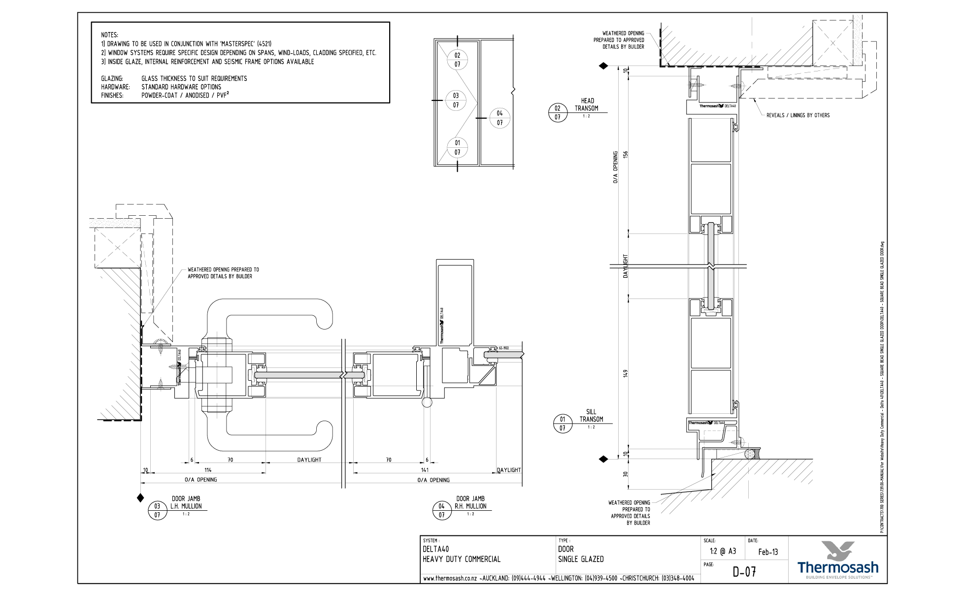
Delta 40 Commercial - Square Bead Single Glazed Door

Download files

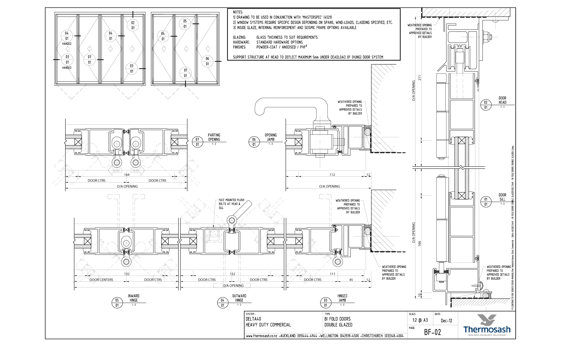
Delta 40 Commercial - Bi-Fold Square Bead Single Glazed Door

Download files

Delta 40 Commercial - Bi-Fold Double Glazed Doors

Download files

Delta 40 Commercial - Bi Fold Flush Glazed Door

Download files

Delta 40 Commercial - Bi Fold Doors with Aluminium Cladding + Infill

Download files

Finishes

  • Polyester powdercoat - both standard and special colours available
  • Anodised - all anodised colours available - commercial grade 20 Micron finish recommended
  • PVF2 Fluorocarbon finishes - available on request

Relevant Projects

Wellington City Mission

Wellington City Mission

Wellington

Three Line Studio

Naylor Love

2024

Quest Hotel Takapuna

Quest Hotel Takapuna

Auckland

Woodhams Meikle Zhan

Bufton Construction

2020

Johnsonville Library

Johnsonville Library

Wellington

Athfield Architects

Southbase Construction

2019

MIT TechPark

MIT TechPark

Auckland

ASC Architects

Haydn & Rollett

2020

The Crossing - Quest Apartments

The Crossing - Quest Apartments

Auckland

CDA

Dominion Construction

2013

Mercedes-Benz - Takapuna

Mercedes-Benz - Takapuna

Auckland

Warren & Mahoney

Savory Construction

2022

North Shore Elective Unit

North Shore Elective Unit

Auckland

Jasmax

Argon

2013

Columbia Apartments

Columbia Apartments

Auckland

Peddlethorp Architects

TBS REMCOM

2015

AUT - Wakefield Street

AUT - Wakefield Street

Auckland

Marchese Partners

ICON

2021

Datacom Building

Datacom Building

Auckland

Architectus

Fletcher

2017

Middlemore Hospital

Middlemore Hospital

Auckland

Klein Architects

Hawkins Construction

2013

Copthorne Hotel - Auckland

Copthorne Hotel - Auckland

Auckland

Susan Lee Architects

Canam

2017

Ibis Hotel

Ibis Hotel

Wellington

2002